thinkSPAIN Logo
  • Buy

    Property for Sale

    • See all properties for sale
    • Start your search using our filters
    • Use our map search
    • Draw your search area
    • Where? Use our location filters

    Popular real estate searches

    Apartments/Flats Fincas/Country Houses Townhouses Villas
    Garden Lift Luxury New Build Parking/Garage Pool Sea View Terrace/Balcony
    Alicante Almería Barcelona Benahavís Calvià Cartagena Costa Blanca Costa del Sol Dénia Estepona Girona Gran Canaria Ibiza Javea / Xàbia Madrid Mallorca Marbella Mazarrón Mijas Murcia Málaga Orihuela Palma de Mallorca Tenerife Torrevieja Valencia
    Browse all locations and property types
  • Rent

    Property for Rent

    • See all properties for rent
    • Holiday rentals
    • Start your search using our filters
    • Use our map search
    • Draw your search area

    Popular rental searches

    Apartments/Flats Fincas/Country Houses Townhouses Villas
    Garden Lift Mountain Views Parking/Garage Pool Sea View Seafront/Beachfront Terrace/Balcony
    Alicante Almería Almuñécar Altea Barcelona Calvià Cartagena Costa Blanca Costa del Sol Dénia Estepona Gran Canaria Granada Ibiza Madrid Mallorca Marbella Murcia Málaga Orihuela Palma de Mallorca San Javier Tenerife Torrevieja Torrox Valencia
    Browse all locations and property types
  • Sell

    I want to advertise on thinkSPAIN

    • I'm an estate agent & want to list my properties
    • I'm an owner and I want to advertise my property directly

    I'm looking for an estate agent in:

    Alicante Almería Barcelona Castellón Cádiz Girona Granada Málaga Tarragona Valencia
    See all estate agents
  • Where?

    Where to buy/rent?

    • Search by lifestyle needs (Location filters)
    • Browse locations by features/services
    • Use our map search
    • Draw your search area

    Popular location searches

    Alicante Almería Barcelona Castellón Cádiz Girona Gran Canaria Granada Ibiza Madrid Mallorca Murcia Málaga Tarragona Tenerife Valencia
  • Map / Draw Your Area

    Use our interactive map to find properties

    • Map search
    • Draw your search area

    Popular map searches

    Alicante Almería Barcelona Benahavís Calvià Cartagena Costa Blanca Costa del Sol Dénia Estepona Girona Gran Canaria Ibiza Javea / Xàbia Madrid Mallorca Marbella Mazarrón Mijas Murcia Málaga Orihuela Palma de Mallorca Tenerife Torrevieja Valencia
  • Directory

    What are you looking for?

    • Estate Agents
    • Surveyors
    • Architects / Architectural Design
    • Lawyers / Solicitors
    • Tax Consultants
    • Currency Brokers
    • Mortgage Brokers
    • Property Maintenance / Management

    Recent searches

    Lawyers / Solicitors in Costa Cálida Estate Agents in Costa Cálida Surveyors in Valencia Estate Agents in Costa Tropical Estate Agents in Alcalá la Real Estate Agents in Almuñécar Estate Agents in Madrid city Surveyors in Valencia Mortgage Brokers in Madrid city Estate Agents in Santa Cruz de Tenerife Estate Agents in Sax Lawyers / Solicitors in Torrevieja Estate Agents in Almería Lawyers / Solicitors in Alicante
  • Help & Info

    How can we help you?

    • Articles & Guides
    • Jobs in Spain
    • Advertiser Login
    • Advertising with thinkSPAIN

    Popular searches

    Buying in Spain Moving to Spain Retiring in Spain Living in Spain Working in Spain News Real Estate Market Top Locations & Properties Finance, Legal & Taxes Finding the right property Spanish Lifestyle & Culture Areas in Spain Property Market Household Relocation Process Transportation Healthcare Languages & Integration Alicante Self-employment
  • Advertiser Login
thinkSPAIN Logo Properties

Terraced Villa for sale in Pilar de la Horadada, Alicante

  • € 369,500
  • 93 m2
  • 2
  • 2
Properties

€ 369,500

Ref. 9765720

Call
  • 2 bedroom Terraced Villa for sale in Pilar de la Horadada - € 369,500 (Ref: 9765720)
  • 2 bedroom Terraced Villa for sale in Pilar de la Horadada - € 369,500 (Ref: 9765720)
  • 2 bedroom Terraced Villa for sale in Pilar de la Horadada - € 369,500 (Ref: 9765720)
  • 2 bedroom Terraced Villa for sale in Pilar de la Horadada - € 369,500 (Ref: 9765720)
  • 2 bedroom Terraced Villa for sale in Pilar de la Horadada - € 369,500 (Ref: 9765720)
  • 2 bedroom Terraced Villa for sale in Pilar de la Horadada - € 369,500 (Ref: 9765720)
  • 2 bedroom Terraced Villa for sale in Pilar de la Horadada - € 369,500 (Ref: 9765720)
  • 2 bedroom Terraced Villa for sale in Pilar de la Horadada - € 369,500 (Ref: 9765720)
  • 2 bedroom Terraced Villa for sale in Pilar de la Horadada - € 369,500 (Ref: 9765720)
  • 2 bedroom Terraced Villa for sale in Pilar de la Horadada - € 369,500 (Ref: 9765720)
  • 2 bedroom Terraced Villa for sale in Pilar de la Horadada - € 369,500 (Ref: 9765720)
  • 2 bedroom Terraced Villa for sale in Pilar de la Horadada - € 369,500 (Ref: 9765720)
  • 2 bedroom Terraced Villa for sale in Pilar de la Horadada - € 369,500 (Ref: 9765720)
  • 2 bedroom Terraced Villa for sale in Pilar de la Horadada - € 369,500 (Ref: 9765720)
  • 2 bedroom Terraced Villa for sale in Pilar de la Horadada - € 369,500 (Ref: 9765720)
  • 2 bedroom Terraced Villa for sale in Pilar de la Horadada - € 369,500 (Ref: 9765720)
  • 2 bedroom Terraced Villa for sale in Pilar de la Horadada - € 369,500 (Ref: 9765720)
  • 2 bedroom Terraced Villa for sale in Pilar de la Horadada - € 369,500 (Ref: 9765720)
1/18

€ 369,500

Terraced Villa for sale in Pilar de la Horadada, Alicante

  • 93 m2
  • 2
  • 2

Description

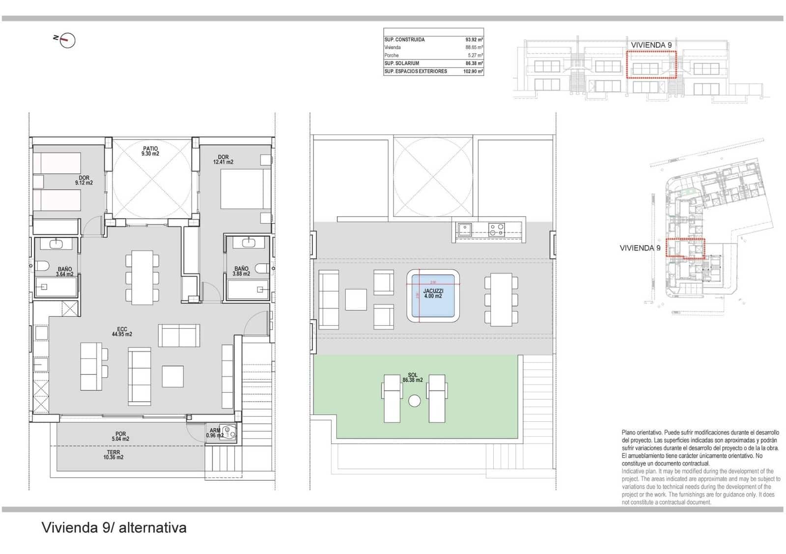
New Build Bungalows for Sale in Pilar de la Horadada 3 km from Beach

Boutique Residential Development in Pilar de la Horadada

Discover this exclusive new build residential complex of modern bungalows located in Pilar de la Horadada, the southernmost town of the Costa Blanca. This boutique project consists of only 14 carefully designed homes with 2 or 3 bedrooms and 2 bathrooms, offering an ideal combination of comfort, style and Mediterranean lifestyle.

The development is situated in a quiet residential area within walking distance of the town center, allowing residents to enjoy easy access to shops, restaurants, supermarkets and essential services. Pilar de la Horadada is known for its welcoming atmosphere, traditional Spanish charm and lively main street filled with cafes, boutiques and charming squares.

Modern Bungalows with Private Outdoor Spaces

The homes have been designed to offer bright interiors and functional layouts, perfect for both permanent living and holiday use.

Ground floor bungalows feature a private garden and private swimming pool, creating the perfect setting to enjoy outdoor living, sunbathing or entertaining family and friends. Top floor bungalows include a spacious terrace and a private rooftop solarium. The solarium comes with a summer kitchen and offers the option to add a private pool or jacuzzi at an extra cost, making it an ideal space to relax while enjoying the warm Mediterranean climate and open views.

Each property includes a private parking space within the residential complex for added convenience.

Quality Construction and Modern Features

These new build homes are built with quality materials and modern installations designed to ensure comfort and energy efficiency throughout the year.

- Aluminum exterior carpentry with thermal break
- Fully fitted kitchens with included appliances
- Bathrooms equipped with mirrors and shower screens
- Interior and exterior LED lighting
- Hot water system with energy efficient aerothermal technology
- Pre installation for ducted air conditioning

The combination of modern design and practical features makes these homes an excellent option for buyers looking for a contemporary property on the Costa Blanca.

Excellent Location Close to Beaches and Golf

Pilar de la Horadada enjoys a strategic location close to some of the best beaches and golf courses in the region.

- Torre de la Horadada beach 3 km
- Mil Palmeras beach 3 km
- Lo Romero Golf 6 km
- Region de Murcia International Airport 45 km
- Alicante Elche Airport 75 km

The area also offers excellent road connections to nearby coastal towns, marinas and leisure facilities, making it a perfect base to explore the Costa Blanca and Costa Calida.

Find Your New Home on the Costa Blanca

If you are looking for a modern new build bungalow near the beach with excellent amenities and a fantastic location, this residential development in Pilar de la Horadada is an outstanding opportunity.

Location

Pilar de la Horadada, Alicante The location has not been provided.

Features

  • Terraced Villa
  • Bedrooms: 2
  • Bathrooms: 2
  • Build Size: 93 m2
  • New Build
  • Private Garden
  • Terrace/Balcony
  • Energy Efficiency Rating: In Progress

How can we help you?

Is something wrong with the Ad?

Tell us about the issue so we can fix it

Mortgage calculator

€
€
%

€ 1,173 per month*

+ € 38,650 taxes (€ 36,950) & expenses (€ 1,700)*

*Please note that the results are only a guide and not a mortgage offer or quote.

Contact the Advertiser

How can we help you?

€

This field is required

Check the error(s) above

Ref. 9765720

By submitting this form, you confirm that you agree to our Terms of Use and Privacy Policy.

Share

Related properties

2 bedroom Terraced Villa for sale in Pilar de la Horadada with pool - € 334,000 (Ref: 9766561) 3 bedroom Terraced Villa for sale in Pilar de la Horadada with pool - € 375,000 (Ref: 9765515) 2 bedroom Terraced Villa for sale in Pilar de la Horadada with pool - € 329,900 (Ref: 9766297) 2 bedroom Terraced Villa for sale in Pilar de la Horadada with pool - € 296,000 (Ref: 9766652)

Advertisement

  1. Spain
  2. Valencia
  3. Alicante
  4. Costa Blanca
  5. Pilar de la Horadada
  6. 2 bedroom Terraced Villa for sale in Pilar de la Horadada - € 369,500 (Ref: 9765720)
Call