thinkSPAIN Logo
  • Comprar

    Propriedades à venda

    • Ver todas as propriedades à venda
    • Comece a sua pesquisa utilizando os nossos filtros
    • Pesquisar no mapa
    • Desenhe a área de pesquisa

    Pesquisas imobiliárias populares

    Apartamentos Casas em Banda Moradias Quintas/Casas Rurais
    Elevador Estacionamento/Garagem Jardim Luxo Novo Construção Piscina Terraço/Balcão Vista do mar
    Alicante Almeria Barcelona Benahavís Calpe / Calp Calvià Cartagena Costa Blanca Costa del Sol Dénia Estepona Fuerteventura Girona Ibiza Madrid Maiorca Marbella Mazarrón Mijas Málaga Múrcia Orihuela Palma de Mallorca Tenerife Torrevieja Valência
    Navegue por todas as localizações e tipos de propriedades
  • Arrendar

    Imóveis para arrendar

    • Ver todos os imóveis para arrendar
    • Arrendamento de férias
    • Comece a sua pesquisa utilizando os nossos filtros
    • Pesquisar no mapa
    • Desenhe a área de pesquisa

    Pesquisas de arrendamento populares

    Apartamentos Casas em Banda Moradias Quintas/Casas Rurais
    Elevador Estacionamento/Garagem Frente Mar/Frente de Praia Jardim Piscina Terraço/Balcão Vista do mar Vistas de Montanha
    Alicante Almeria Almuñécar Altea Barcelona Calvià Cartagena Costa Blanca Costa del Sol Dénia Gran Canária Granada Ibiza Madrid Maiorca Marbella Málaga Múrcia Nerja Orihuela Palma de Mallorca Tenerife Torre-Pacheco Torrevieja Torrox Valência
    Navegue por todas as localizações e tipos de propriedades
  • Quero anunciar no thinkSPAIN

    Procuro um agente imobiliário em:

    Alicante Almeria Barcelona Castelló Cádis Girona Granada Málaga Tarragona Valência
    Ver todos os agentes imobiliários
  • Mapa / Desenhe a sua área

    Use o nosso mapa interativo para encontrar propriedades

    • Pesquisa no mapa
    • Desenhe a área de pesquisa

    Pesquisas no mapa populares

    Alicante Almeria Barcelona Benahavís Calpe / Calp Calvià Cartagena Costa Blanca Costa del Sol Dénia Estepona Fuerteventura Girona Ibiza Madrid Maiorca Marbella Mazarrón Mijas Málaga Múrcia Orihuela Palma de Mallorca Tenerife Torrevieja Valência
  • Directório

    Do que está à procura?

    • Agentes Imobiliários
    • Topógrafos
    • Arquitetos / Design Arquitetónico
    • Advogados / Solicitadores
    • Consultores Fiscais
    • Corretoras
    • Corretores de Hipotecas
    • Gestão / Manutenção de Imóveis

    Pesquisas recentes

    Agentes Imobiliários em Arona Agentes Imobiliários em Alcalá la Real Advogados / Solicitadores em Costa de la Luz Agentes Imobiliários em Torre-Pacheco Advogados / Solicitadores em Alicante Agentes Imobiliários em Marbella Advogados / Solicitadores em Costa Cálida Agentes Imobiliários em Altea Advogados / Solicitadores em Málaga Agentes Imobiliários em Roses Agentes Imobiliários em San Javier Agentes Imobiliários em Elche / Elx Advogados / Solicitadores em Rojales Corretores de Hipotecas em Madrid cidade
  • Ajuda e informações

    Como podemos ajudar?

    • Artigos e Guias
    • Login de anunciantes

    Pesquisas populares

    Comprar em Espanha Mudar-se para Espanha Viver em Espanha Finanças, jurídico e impostos Mercado imobiliário Estilo de vida e cultura espanhola Encontrar o imóvel certo
  • Login de anunciantes
thinkSPAIN Logo Imóveis

Apartamento para venda em Mijas pueblo, Mijas, Málaga

  • 198 900 €
  • 54 m2
  • 1
  • 1
Imóveis

198 900 €

Ref. 9019251

Ligar
  • 1 quarto Apartamento para venda em Mijas com piscina - 198 900 € (Ref: 9019251)
  • 1 quarto Apartamento para venda em Mijas com piscina - 198 900 € (Ref: 9019251)
  • 1 quarto Apartamento para venda em Mijas com piscina - 198 900 € (Ref: 9019251)
  • 1 quarto Apartamento para venda em Mijas com piscina - 198 900 € (Ref: 9019251)
  • 1 quarto Apartamento para venda em Mijas com piscina - 198 900 € (Ref: 9019251)
  • 1 quarto Apartamento para venda em Mijas com piscina - 198 900 € (Ref: 9019251)
  • 1 quarto Apartamento para venda em Mijas com piscina - 198 900 € (Ref: 9019251)
  • 1 quarto Apartamento para venda em Mijas com piscina - 198 900 € (Ref: 9019251)
  • 1 quarto Apartamento para venda em Mijas com piscina - 198 900 € (Ref: 9019251)
  • 1 quarto Apartamento para venda em Mijas com piscina - 198 900 € (Ref: 9019251)
  • 1 quarto Apartamento para venda em Mijas com piscina - 198 900 € (Ref: 9019251)
1/11

198 900 €

Apartamento para venda em Mijas pueblo, Mijas, Málaga

  • 54 m2
  • 1
  • 1

Descrição

Este novo projeto residencial oferece 116 apartamentos estilosos, tipo loft, com um quarto, projetados para aqueles que buscam um equilíbrio entre conforto, praticidade e forte potencial de investimento. Seja você um comprador do primeiro imóvel, esteja procurando uma segunda residência ou fazendo um investimento imobiliário inteligente, esses apartamentos apresentam uma ótima oportunidade em uma das áreas mais promissoras da Costa del Sol.

Situado em Las Lagunas de Mijas, um bairro bem conectado e vibrante, a localização oferece acesso imediato a centros comerciais, restaurantes, serviços públicos e excelentes ligações de transporte tanto para a costa quanto para cidades próximas. A vida diária aqui é simples, conveniente e agradável.

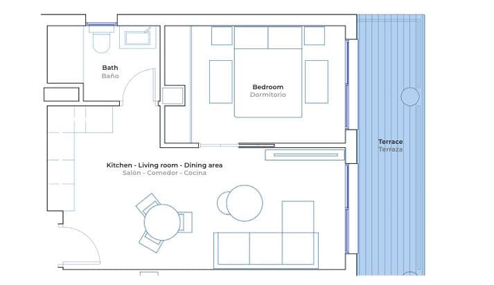
Cada unidade possui um layout em plano aberto que unifica a área de estar, a cozinha e o quarto em um único espaço harmonioso. Os interiores são acabados com tons quentes e materiais naturais, criando uma atmosfera clara e convidativa. Um terraço privado, que estende o espaço de estar para o exterior, permite que os residentes desfrutem do clima mediterrâneo durante todo o ano.

O empreendimento também conta com espaços compartilhados cuidadosamente projetados para lazer, exercício e socialização—fomentando um senso de comunidade em um ambiente moderno.

Apenas 2 km da praia e a uma curta distância de carro de alguns dos principais destinos de compras e campos de golfe da região, esta localização está rapidamente se tornando uma das mais desejadas em Mijas. Posicionado ao lado dos bem estabelecidos Jardines de las Lagunas I & II, a área continua a crescer em popularidade e valor.

Esta é uma opção ideal para quem busca uma vida contemporânea com valor a longo prazo na Costa del Sol.

Local

Mijas pueblo, Mijas, Málaga A localização não foi providenciada.
  • 0km para a cidade
  • 0km para o aeroporto
  • 0km até à praia
  • 0km para o campo de golfe

Características

  • Apartamento
  • Quartos: 1
  • Casas de Banho: 1
  • Área de Construção: 54 m2
  • Piscina
  • Terraço/Balcão
  • Classificação de Eficiência Energética: Em andamento

Como podemos ajudá-los?

Há algo de errado com o anúncio?

Fale-nos sobre o assunto para que possamos resolvê-lo

Calculadora de hipotecas

€
€
%

631 € por mês*

+ 15 623 € impostos (13 923 €) & despesas (1 700 €)*

*Por favor, note que os resultados são apenas um guia e não uma oferta ou cotação de hipoteca.

Contacte o/a Anunciante

Como podemos ajudá-los?

€

This field is required

Verifique o(s) erro(s) acima

Ref. 9019251

Ao enviar este formulário, confirma que concorda com os nossos Termos de Utilização e Política de Privacidade.

Partilhar

Imóveis relacionados

2 quarto Apartamento para venda em Mijas - 216 850 € (Ref: 9543925) 1 quarto Apartamento para venda em Mijas com piscina - 180 000 € (Ref: 9844602) 1 quarto Apartamento para venda em Mijas com piscina garagem - 215 000 € (Ref: 9665632) 1 quarto Apartamento para venda em Los Pacos, Fuengirola - 199 000 € (Ref: 9593311)

Publicidade

  1. Espanha
  2. Andaluzia
  3. Málaga
  4. Costa del Sol
  5. Mijas
  6. Mijas pueblo
  7. 1 quarto Apartamento para venda em Mijas pueblo, Mijas com piscina - 198 900 € (Ref: 9019251)
Ligar