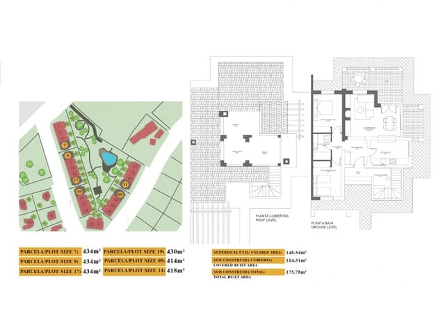
- 99 m2 Construçã
- 2 Quartos
- 2 Casas de Banho
- 139 m2 Terreno
Residencial de obra nova em Torre Pacheco. Promoção de obra nova de 8 casas geminadas e quads situada em Torre Pacheco. Habitações modernas de 2 quartos e 2 banheiros, cozinha americana com sala,... Leia mais