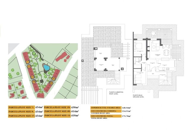
- 178 m2 Construçã
- 3 Quartos
- 2 Casas de Banho
- 802 m2 Terreno
Los Altos de Las Palas é um novo empreendimento composto por vilas e moradias com lotes espaçosos, com excelentes qualidades e um toque moderno que respeita a arquitetura tradicional das casas de... Leia mais