- 168 m2 Construçã
- 3 Quartos
- 2 Casas de Banho
Situado no encantador município de Relleu, este conjunto residencial oferece uma variedade de opções de habitação que se adaptam a diferentes necessidades. Com um total de 40 unidades, os... Leia mais
Situado no encantador município de Relleu, este conjunto residencial oferece uma variedade de opções de habitação que se adaptam a diferentes necessidades. Com um total de 40 unidades, os... Leia mais
Apresentamos esta impressionante propriedade de 4 quartos e 3 casas de banho. Uma casa de banho é extra espaçosa: é a casa de banho 'ensuite' do quarto principal, que é extra luxuosa. Do... Leia mais
Belo e elegante castelo espanhol renovado Construído em 1895 e com grande atenção aos detalhes originais totalmente restaurado em 2000 e mantido actualizado. Localização muito tranquila e... Leia mais
A urbanização aberta Muscaret oferece o melhor de dois mundos: a vida na tranquilidade do campo da Espanha, mas perto o suficiente da vivacidade e de todas as facilidades que você precisa na Costa... Leia mais
Esta propriedade é uma casa geminada à venda, incluindo móveis conforme mostrado nas fotos. Você pode mudar-se imediatamente. Toda a documentação foi verificada, incluindo um certificado de... Leia mais
Este é um típico pueblo espanhol, situado nas colinas da Sierra l'Aguilar. Aqui ficará alojado na tranquilidade do interior de Espanha e, ainda assim, perto o suficiente da animação e de... Leia mais
Uma moradia rústica isolada de 150 m², dividida em dois pisos, situada num terreno de 15.515 m². Existe também um armazém de 783 m², que anteriormente era uma exploração avícola. Localizada... Leia mais
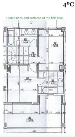
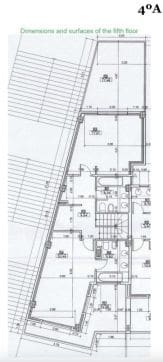
Residencial de obra nova em Relleu é o lugar ideal para quem quer ter uma habitação de qualidade num local muito bonito e com todos os serviços ao lado. O edifício tem 7 andares com 2 escadas e... Leia mais
Complexo residencial em Relleu com piscina comunitária e vistas desimpedidas Trata-se de uma renovação completa de um edifício construído há vários anos que ficou inacabado. É o lugar ideal... Leia mais
Uma casa de vila com 343 m2, distribuída em três pisos, localizada bem no centro da vila de Relleu, a apenas alguns minutos a pé de todos os serviços que esta vila de montanha tem para oferecer.... Leia mais
Residencial em Relleu com piscina comunitária e vistas abertas Trata-se de uma regeneração integral de um edifício construído há alguns anos que ficou inacabado, é o lugar ideal para aqueles... Leia mais
Esta propriedade tem muitos metros quadrados de terreno e está em uma zona tranquila, a 6 quilômetros de Relleu e 22 quilômetros de Villajoyosa ou El Campello. A casa está em boas condições,... Leia mais
O Residencial de Obra Nova em Relleu é o lugar perfeito para aqueles que buscam uma habitação de qualidade em um ambiente bonito e com todos os serviços ao seu alcance. Este moderno edifício de... Leia mais
Condomínio residencial em Relleu com piscina comunitária e vistas abertas Esta é uma renovação completa de um edifício construído há vários anos que ficou inacabado. É o lugar ideal para... Leia mais
Sonha com uma casa acolhedora numa vila pitoresca? Esta é a sua oportunidade! Situada junto à igreja, esta casa de vila totalmente renovada espera por si. Com 123 m2 de área, oferece espaço e... Leia mais
Oferece-se uma ampla propriedade rústica situada num ambiente natural e tranquilo, a apenas 3 km do centro de Relleu. Ideal para quem procura privacidade, natureza e uma grande área de terreno.... Leia mais