- 115 m2 Costruzione
- 3 Camere da letto
- 2 Bagni
Piano ampio, luminoso e in eccellima posizione – Zona La Coca / La Nía / Vistahermosa, Aspe Vi presentiamo un'abitazione che si distingue per la sua ampiezza, luminosità e posizione... Leggi di più
Piano ampio, luminoso e in eccellima posizione – Zona La Coca / La Nía / Vistahermosa, Aspe Vi presentiamo un'abitazione che si distingue per la sua ampiezza, luminosità e posizione... Leggi di più
Scopri Villa Stone Immagina di vivere in una villa di nuova costruzione progettata con attenzione a ogni dettaglio, offrendo comfort, stile e funzionalità. Con Villa Stone, puoi scegliere il tuo... Leggi di più
Villa mediterranea monofamiliare con piscina privata e terreno di 10.000 m2 in vendita nell’entroterra di Alicante – Pinoso / Aspe Se cerchi tranquillità, spazio, natura e una casa moderna dallo... Leggi di più
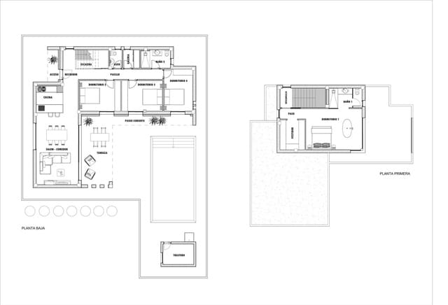
Villa moderna di nuova costruzione ad Aspe Villa di nuova costruzione dal design moderno e innovativo a La Romana, Aspe. Villa con 3 camere da letto, 2 bagni, cucina americana con soggiorno, terrazza... Leggi di più
Villa di 4 camere da letto con piscina privata in vendita a Aspe. Questa abitazione di nuova costruzione è progettata su due piani e comprende 4 camere da letto (camera principale con cabina... Leggi di più
Scopri Villa Mediterráneo Immagina di vivere in una villa di nuova costruzione progettata con attenzione a ogni dettaglio, offrendo comfort, stile e funzionalità. Con Villa Mediterráneo, puoi... Leggi di più
Ville di nuova costruzione situate nel comune di Aspe. Ville di nuova costruzione con diversi modelli tra cui scegliere tra 2, 3 o 4 camere, su uno o due livelli e costruite con soletta o struttura:... Leggi di più
Siamo lieti di presentare questa splendida casa di campagna nel centro della città di Aspe. La casa è su 3 piani, distribuiti in diverse stanze, camere da letto, saloni e cucina. Sul retro si trova... Leggi di più
Villetta di nuova costruzione situate nel comune di Aspe. Ville di nuova costruzione con diversi modelli tra cui scegliere: 2, 3 o 4 camere, su uno o due piani e costruite con lastra o struttura: a... Leggi di più
Benvenuto nella tua nuova casa! Questa affascinante casa di campagna si trova nella tranquillità di Alcana, una zona ambita alla periferia di Aspe. È perfetta per una vacanza tranquilla o per... Leggi di più
Ville di nuova costruzione situate nel comune di Aspe. Ville di nuova costruzione con vari modelli tra cui scegliere: 2, 3 o 4 camere, one o due piani e costruite con lastra o con struttura: a... Leggi di più
Ville nuove situate nel comune di Aspe. Ville nuove con diversi modelli tra cui scegliere, con 2, 3 o 4 camere da letto, su uno o due piani e costruite con lastra o con struttura: a seconda del... Leggi di più
Questa villa con quattro camere da letto, splendidamente ristrutturata, con piscina privata, situata su un ampio lotto nella ricercata zona di Aspe, Alicante. Situata a soli cinque minuti di auto dal... Leggi di più
Villa di nuova costruzione con 4 camere da letto e piscina di 12m. Un'opportunità per essere i primi a possedere una villa spagnola contemporanea e moderna. Hondon Nieves-Aspe Si tratta di una... Leggi di più
Bella casa a Aspe, nel centro della popolazione. Nel cuore di Aspe si trova questa interessante casa in vendita ideale per chi cerca una proprietà con un grande potenziale. Con una superficie... Leggi di più
Siamo lieti di presentare questa splendida proprietà di 390 m² situata nel pieno centro di Aspe, una proprietà unica piena di carattere e potenziale. La casa è distribuita su tre piani e offre... Leggi di più