thinkSPAIN Logo
  • Kopen

    Onroerend goed te koop

    • Alle koopwoningen bekijken
    • Begin je zoektocht met behulp van onze filters
    • Gebruik onze kaartzoekfunctie
    • Teken uw zoekgebied
    • Waar? Gebruik onze locatiefilters

    Populaire vastgoedzoekopdrachten

    Appartementen/Flats Finca's/Landhuizen Huizen Villas
    Lift Luxe Nieuwbouw Parkeren/Garage Terras/Balkon Tuin Zeezicht Zwembad
    Alicante Almería Barcelona Benahavís Calpe / Calp Calvià Cartagena Costa Blanca Costa del Sol Dénia Estepona Gerona Gran Canaria Ibiza Madrid Majorca Marbella Mazarrón Mijas Murcia Málaga Orihuela Palma de Mallorca Tenerife Torrevieja Valencia
    Door alle locaties en eigendomstypen bladeren
  • Huren

    Eigendom te huur

    • Alle huurwoningen bekijken
    • Vakantieverhuur
    • Begin je zoektocht met behulp van onze filters
    • Gebruik onze kaartzoekfunctie
    • Teken uw zoekgebied

    Populaire huurzoekopdrachten

    Appartementen/Flats Finca's/Landhuizen Huizen Villas
    Lift Nieuwbouw Parkeren/Garage Terras/Balkon Tuin Uitzicht op de bergen Zeezicht Zwembad
    Alicante Almería Almuñécar Altea Barcelona Calvià Cartagena Costa Blanca Costa del Sol Dénia Estepona Gran Canaria Granada Ibiza Madrid Majorca Marbella Murcia Málaga Orihuela Palma de Mallorca San Javier Tenerife Torrevieja Torrox Valencia
    Door alle locaties en eigendomstypen bladeren
  • Ik wil adverteren op thinkSPAIN

    Ik zoek een makelaar in:

    Alicante Almería Barcelona Castellón Cádiz Gerona Granada Málaga Tarragona Valencia
    Alle makelaars bekijken
  • Waar?

    Waar kopen/huren?

    • Zoeken op levensstijlbehoeften (Locatiefilters)
    • Locaties bekijken op kenmerken/diensten
    • Gebruik onze kaartzoekfunctie
    • Teken uw zoekgebied

    Populaire locatiezoekopdrachten

    Alicante Almería Barcelona Castellón Cádiz Gerona Gran Canaria Granada Ibiza Madrid Majorca Murcia Málaga Tarragona Tenerife Valencia
  • Kaart/Teken uw gebied

    Gebruik onze interactieve kaart om eigendommen te vinden

    • Kaartzoekfunctie
    • Teken uw zoekgebied

    Populaire kaartzoekopdrachten

    Alicante Almería Barcelona Benahavís Calpe / Calp Calvià Cartagena Costa Blanca Costa del Sol Dénia Estepona Gerona Gran Canaria Ibiza Madrid Majorca Marbella Mazarrón Mijas Murcia Málaga Orihuela Palma de Mallorca Tenerife Torrevieja Valencia
  • Directory

    Waar ben je naar op zoek?

    • Onroerendgoedmakelaars
    • Bouwkundige inspecteurs
    • Architecten / Bouwkundig ontwerp
    • Advocaten
    • Belastingadviseurs
    • Wisselkantoren
    • Hypotheekmakelaars
    • Vastgoedonderhoud / beheer

    Recente zoekopdrachten

    Advocaten in Alicante Onroerendgoedmakelaars in Marbella Onroerendgoedmakelaars in Tenerife Advocaten in Costa Valencia Bouwkundige inspecteurs in Valencia Onroerendgoedmakelaars in Costa Tropical Onroerendgoedmakelaars in Costa Almería Onroerendgoedmakelaars in Javea / Xàbia Advocaten in Javea / Xàbia Onroerendgoedmakelaars in Almería Advocaten in Alicante Advocaten in Costa Cálida Onroerendgoedmakelaars in Torrevieja Onroerendgoedmakelaars in Valencia
  • Hulp en info

    Hoe kunnen we u helpen?

    • Artikelen en gidsen
    • Adverteerder Login

    Populaire zoekopdrachten

    In Spanje kopen Naar Spanje verhuizen Van je pensioen genieten in Spanje In Spanje wonen In Spanje werken Toplocaties & Vastgoed Financiën, juridische zaken & belastingen Vind de juiste woning Spaanse levensstijl & cultuur Regio's in Spanje Verhuizing Transport Gezondheidszorg Huishouden Vastgoedmarkt Alicante Taal & integreren Veiligheid Werken als zelfstandige Een baan vinden
  • Adverteerder Login
thinkSPAIN Logo Vastgoed

Villa te koop in Finestrat, Alicante

  • € 895.000
  • 183 m2
  • 3
  • 3
  • 551 m2
Vastgoed

€ 895.000

Ref. 9452644

Bellen
  • 3 slaapkamer Villa te koop in Finestrat met zwembad - € 895.000 (Ref: 9452644)
  • 3 slaapkamer Villa te koop in Finestrat met zwembad - € 895.000 (Ref: 9452644)
  • 3 slaapkamer Villa te koop in Finestrat met zwembad - € 895.000 (Ref: 9452644)
  • 3 slaapkamer Villa te koop in Finestrat met zwembad - € 895.000 (Ref: 9452644)
  • 3 slaapkamer Villa te koop in Finestrat met zwembad - € 895.000 (Ref: 9452644)
  • 3 slaapkamer Villa te koop in Finestrat met zwembad - € 895.000 (Ref: 9452644)
  • 3 slaapkamer Villa te koop in Finestrat met zwembad - € 895.000 (Ref: 9452644)
  • 3 slaapkamer Villa te koop in Finestrat met zwembad - € 895.000 (Ref: 9452644)
  • 3 slaapkamer Villa te koop in Finestrat met zwembad - € 895.000 (Ref: 9452644)
  • 3 slaapkamer Villa te koop in Finestrat met zwembad - € 895.000 (Ref: 9452644)
  • 3 slaapkamer Villa te koop in Finestrat met zwembad - € 895.000 (Ref: 9452644)
  • 3 slaapkamer Villa te koop in Finestrat met zwembad - € 895.000 (Ref: 9452644)
  • 3 slaapkamer Villa te koop in Finestrat met zwembad - € 895.000 (Ref: 9452644)
  • 3 slaapkamer Villa te koop in Finestrat met zwembad - € 895.000 (Ref: 9452644)
  • 3 slaapkamer Villa te koop in Finestrat met zwembad - € 895.000 (Ref: 9452644)
1/15

€ 895.000

Villa te koop in Finestrat, Alicante

  • 183 m2
  • 3
  • 3
  • 551 m2

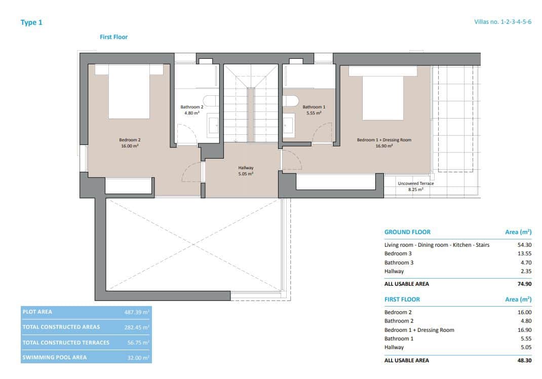
Beschrijving

Villa te koop in Sierra Cortina Finestrat met zeezicht. Vrijstaande nieuwbouwvilla met 3 slaapkamers, privézwembad, zonnepanelen, domotica en energiezuinig ontwerp, nabij zee en AP7.

In de Sierra Cortina in Finestrat is nog één villa te koop met eigentijds design, privacy en snelle toegang tot voorzieningen. De ligging is strategisch: binnen vijf autominuten bereikt u de zee en via de AP7 bent u uitstekend verbonden met de regio. De villa biedt zeezicht en is ontworpen met focus op licht, ruimte en energie-efficiëntie.

Beschrijving
De villa beschikt over een ruime woon-eetkamer met open keuken, drie slaapkamers en drie badkamers. Grote raampartijen zorgen voor veel daglicht in alle ruimtes. De keuken is volledig uitgerust met Bosch-apparatuur of gelijkwaardig. Er is een privé tuin met gazon, natuurlijke beplanting, automatische irrigatie en buitenverlichting, evenals een eigen zwembad van 28 m² en een onderbouw van 70 m2.

De afwerking is van hoog niveau en omvat onder meer automatische rolluiken in de slaapkamers, een veiligheidsdeur, ducted airconditioning warm/koud, zonnepanelen (warm water) domotica en een bioklimatisch ontwerp voor optimale energiebesparing.

Bijzonderheden
Vrijstaande villa te koop in Sierra Cortina
Zeezicht
3 slaapkamers en 3 badkamers
Privé tuin met zwembad van 28 m²
Onderbouw
Ducted airco warm/koud
Bioklimatisch ontwerp (optimale energiebesparing)
Domotica en veiligheidsdeur
Snelle toegang tot AP7

Oplevering 18 maanden
Een eigentijdse woning in een moderne woonomgeving nabij zee en Benidorm, Costa Blanca.

Locatie

Finestrat, Alicante De locatie is niet verstrekt.

Kenmerken

  • Villa
  • Slaapkamers: 3
  • Badkamers: 3
  • Woonoppervlakte: 183m 2
  • Plot: 551m 2
  • Nieuwbouw
  • Zwembad
  • Zeezicht
  • Privé-tuin
  • Energiecertificaat (Verbruik): A
  • Energiecertificaat (Emissies): A

Hoe kunnen we u helpen?

Heeft u een fout ontdekt?

Vertel ons wat u heeft gedetecteerd om het te corrigeren

Hypotheekcalculator

€
€
%

€ 2.842 per maand*

+ € 91.200 belastingen (€ 89.500) & kosten (€ 1.700)*

*Houd er rekening mee dat de resultaten slechts een leidraad zijn en geen hypotheekofferte of -aanbieding.

Contact de adverteerder

Hoe kunnen we u helpen?

€

This field is required

Controleer de bovenstaande fout(en)
+34 865 445 675

Ref. 9452644

Door dit formulier te versturen, bevestig je dat je akkoord gaat met onze Gebruiksvoorwaarden en Privacybeleid.

Delen

Gerelateerde objecten

3 slaapkamer Villa te koop in Finestrat met zwembad garage - € 799.900 (Ref: 9737019) 6 slaapkamer Villa te koop in Finestrat met zwembad - € 940.000 (Ref: 8243057) 4 slaapkamer Villa te koop in Finestrat met zwembad garage - € 860.000 (Ref: 9191255) 3 slaapkamer Villa te koop in Finestrat met zwembad garage - € 865.000 (Ref: 6857338)

Advertenties

  1. Spanje
  2. Valencia
  3. Alicante
  4. Costa Blanca
  5. Finestrat
  6. 3 slaapkamer Villa te koop in Finestrat met zwembad - € 895.000 (Ref: 9452644)
Bellen