thinkSPAIN Logo
  • Kopen

    Onroerend goed te koop

    • Alle koopwoningen bekijken
    • Begin je zoektocht met behulp van onze filters
    • Gebruik onze kaartzoekfunctie
    • Teken uw zoekgebied
    • Waar? Gebruik onze locatiefilters

    Populaire vastgoedzoekopdrachten

    Appartementen/Flats Finca's/Landhuizen Huizen Villas
    Lift Luxe Nieuwbouw Parkeren/Garage Terras/Balkon Tuin Zeezicht Zwembad
    Alicante Almería Barcelona Benahavís Calvià Cartagena Costa Blanca Costa del Sol Dénia Estepona Gerona Gran Canaria Ibiza Javea / Xàbia Madrid Majorca Marbella Mazarrón Mijas Murcia Málaga Orihuela Palma de Mallorca Tenerife Torrevieja Valencia
    Door alle locaties en eigendomstypen bladeren
  • Huren

    Eigendom te huur

    • Alle huurwoningen bekijken
    • Vakantieverhuur
    • Begin je zoektocht met behulp van onze filters
    • Gebruik onze kaartzoekfunctie
    • Teken uw zoekgebied

    Populaire huurzoekopdrachten

    Appartementen/Flats Finca's/Landhuizen Huizen Villas
    Eerste lijn van zee / strand Lift Parkeren/Garage Terras/Balkon Tuin Uitzicht op de bergen Zeezicht Zwembad
    Alicante Almería Almuñécar Altea Barcelona Calvià Cartagena Costa Blanca Costa del Sol Dénia Estepona Gran Canaria Granada Ibiza Madrid Majorca Marbella Murcia Málaga Orihuela Palma de Mallorca San Javier Tenerife Torrevieja Torrox Valencia
    Door alle locaties en eigendomstypen bladeren
  • Ik wil adverteren op thinkSPAIN

    Ik zoek een makelaar in:

    Alicante Almería Barcelona Castellón Cádiz Gerona Granada Málaga Tarragona Valencia
    Alle makelaars bekijken
  • Waar?

    Waar kopen/huren?

    • Zoeken op levensstijlbehoeften (Locatiefilters)
    • Locaties bekijken op kenmerken/diensten
    • Gebruik onze kaartzoekfunctie
    • Teken uw zoekgebied

    Populaire locatiezoekopdrachten

    Alicante Almería Barcelona Castellón Cádiz Gerona Gran Canaria Granada Ibiza Madrid Majorca Murcia Málaga Tarragona Tenerife Valencia
  • Kaart/Teken uw gebied

    Gebruik onze interactieve kaart om eigendommen te vinden

    • Kaartzoekfunctie
    • Teken uw zoekgebied

    Populaire kaartzoekopdrachten

    Alicante Almería Barcelona Benahavís Calvià Cartagena Costa Blanca Costa del Sol Dénia Estepona Gerona Gran Canaria Ibiza Javea / Xàbia Madrid Majorca Marbella Mazarrón Mijas Murcia Málaga Orihuela Palma de Mallorca Tenerife Torrevieja Valencia
  • Directory

    Waar ben je naar op zoek?

    • Onroerendgoedmakelaars
    • Bouwkundige inspecteurs
    • Architecten / Bouwkundig ontwerp
    • Advocaten
    • Belastingadviseurs
    • Wisselkantoren
    • Hypotheekmakelaars
    • Vastgoedonderhoud / beheer

    Recente zoekopdrachten

    Onroerendgoedmakelaars in Roses Advocaten in Costa Blanca Onroerendgoedmakelaars in Costa Almería Onroerendgoedmakelaars in Costa Brava Onroerendgoedmakelaars in Rábade Hypotheekmakelaars in Marbella Advocaten in Costa Blanca Hypotheekmakelaars in Madrid stad Vastgoedonderhoud / beheer in Alicante Onroerendgoedmakelaars in Lugo Onroerendgoedmakelaars in Tenerife Bouwkundige inspecteurs in Barx Onroerendgoedmakelaars in Jaén Onroerendgoedmakelaars in Torre-Pacheco
  • Hulp en info

    Hoe kunnen we u helpen?

    • Artikelen en gidsen
    • Adverteerder Login

    Populaire zoekopdrachten

    In Spanje kopen Naar Spanje verhuizen Van je pensioen genieten in Spanje In Spanje wonen In Spanje werken Toplocaties & Vastgoed Financiën, juridische zaken & belastingen Vind de juiste woning Spaanse levensstijl & cultuur Regio's in Spanje Verhuizing Transport Gezondheidszorg Huishouden Vastgoedmarkt Alicante Taal & integreren Veiligheid Majorca Een baan vinden
  • Adverteerder Login
thinkSPAIN Logo Vastgoed

Appartement te koop in Calpe / Calp, Alicante

  • € 464.000
  • 113 m2
  • 3
  • 2
Vastgoed

€ 464.000

Ref. 9674215

Bellen
  • 3 slaapkamer Appartement te koop in Calpe / Calp met zwembad garage - € 464.000 (Ref: 9674215)
  • 3 slaapkamer Appartement te koop in Calpe / Calp met zwembad garage - € 464.000 (Ref: 9674215)
  • 3 slaapkamer Appartement te koop in Calpe / Calp met zwembad garage - € 464.000 (Ref: 9674215)
  • 3 slaapkamer Appartement te koop in Calpe / Calp met zwembad garage - € 464.000 (Ref: 9674215)
  • 3 slaapkamer Appartement te koop in Calpe / Calp met zwembad garage - € 464.000 (Ref: 9674215)
  • 3 slaapkamer Appartement te koop in Calpe / Calp met zwembad garage - € 464.000 (Ref: 9674215)
  • 3 slaapkamer Appartement te koop in Calpe / Calp met zwembad garage - € 464.000 (Ref: 9674215)
  • 3 slaapkamer Appartement te koop in Calpe / Calp met zwembad garage - € 464.000 (Ref: 9674215)
  • 3 slaapkamer Appartement te koop in Calpe / Calp met zwembad garage - € 464.000 (Ref: 9674215)
  • 3 slaapkamer Appartement te koop in Calpe / Calp met zwembad garage - € 464.000 (Ref: 9674215)
  • 3 slaapkamer Appartement te koop in Calpe / Calp met zwembad garage - € 464.000 (Ref: 9674215)
  • 3 slaapkamer Appartement te koop in Calpe / Calp met zwembad garage - € 464.000 (Ref: 9674215)
  • 3 slaapkamer Appartement te koop in Calpe / Calp met zwembad garage - € 464.000 (Ref: 9674215)
1/13

€ 464.000

Appartement te koop in Calpe / Calp, Alicante

  • 113 m2
  • 3
  • 2

Beschrijving

Dit exclusieve residentiële complex, gelegen in de pittoreske stad Calpe, beroemd om zijn prachtige stranden en indrukwekkende natuurlijke uitzichten. Met een ideale ligging naast Las Salinas en op slechts vijf minuten lopen van het beroemde Fossa-strand, biedt het een idyllische combinatie van kustsereniteit en landschappelijke pracht.

Calpe, met de iconische Peñón de Ifach, is een juweel aan de Costa Blanca, omringd door Benissa en Moraira in het noorden en Altea in het zuiden. Deze levendige plaats heeft ongerepte zandstranden, kristalhelder water en een grote verscheidenheid aan winkels, restaurants en recreatieve mogelijkheden. De stranden met Blauwe Vlag, waaronder Arenal-Bol en Fossa-Levante, zijn perfect om te duiken en te ontspannen. De nabijgelegen natuurparken en bergketens verhogen de aantrekkingskracht van Calpe nog verder.

Dit complex profiteert van uitstekende connectiviteit, met gemakkelijke toegang tot de belangrijkste wegen en snelwegen (N-332 en AP-7), wat verbindingen biedt naar de belangrijkste steden aan de Costa Blanca en de luchthaven van Alicante. Het gebied is goed bereikbaar met het openbaar vervoer, wat het comfort van de bewoners garandeert.

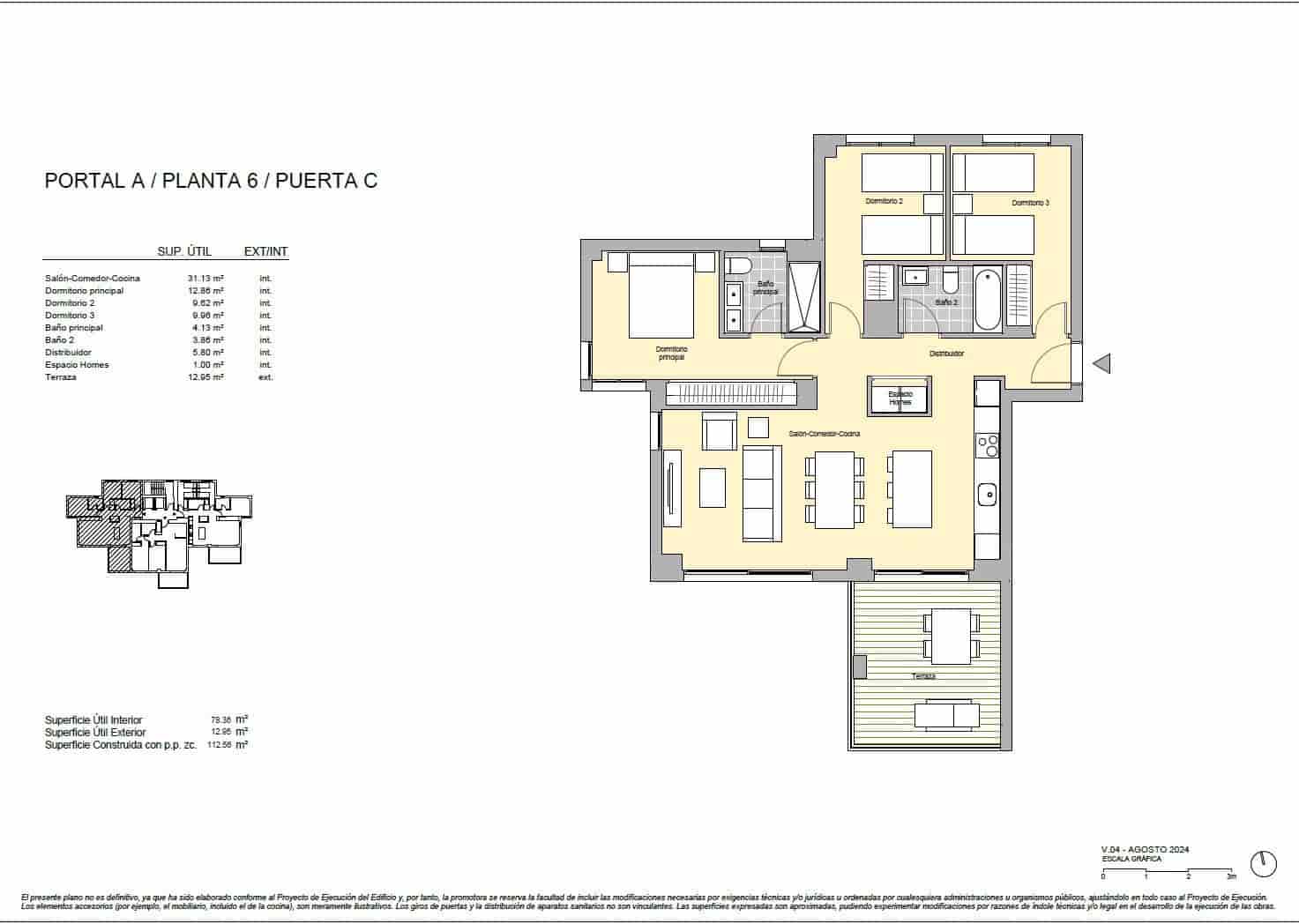
Deze gesloten gemeenschap bestaat uit twee elegante gebouwen van 11 verdiepingen die moderne appartementen van 2 en 3 slaapkamers aanbieden, elk met ruime balkons die zijn ontworpen om optimaal te profiteren van het mediterrane klimaat. De gemeenschappelijke voorzieningen omvatten zwembaden voor volwassenen en kinderen met zonneterrassen, een padelbaan, een gourmetruimte en prachtige tuinen.

Een opvallend appartement op de tweede verdieping biedt 112,57 m2 woonruimte, met drie slaapkamers en twee badkamers. Dit appartement beschikt ook over een terras van 12,95 m2, ideaal om te genieten van de indrukwekkende uitzichten en het buitenleven.

Het combineert perfect hedendaags comfort met natuurlijke schoonheid, en biedt een uitzonderlijke mediterrane levensstijl in het hart van de Costa Blanca.

Locatie

Calpe / Calp, Alicante De locatie is niet verstrekt.

Kenmerken

  • Appartement
  • Slaapkamers: 3
  • Badkamers: 2
  • Woonoppervlakte: 113m 2
  • Verdiepingsnummer: 6
  • Gemeenschappelijk zwembad
  • Parkeren/Garage
  • Tuin
  • Airconditioning
  • Lift
  • Terras/Balkon
  • Verwarming
  • Energiecertificaat (Verbruik): G
  • Energiecertificaat (Emissies): G

Hoe kunnen we u helpen?

Heeft u een fout ontdekt?

Vertel ons wat u heeft gedetecteerd om het te corrigeren

Hypotheekcalculator

€
€
%

€ 1.473 per maand*

+ € 48.100 belastingen (€ 46.400) & kosten (€ 1.700)*

*Houd er rekening mee dat de resultaten slechts een leidraad zijn en geen hypotheekofferte of -aanbieding.

Contact de adverteerder

Hoe kunnen we u helpen?

€

This field is required

Controleer de bovenstaande fout(en)

Ref. 9674215

Door dit formulier te versturen, bevestig je dat je akkoord gaat met onze Gebruiksvoorwaarden en Privacybeleid.

Delen

Gerelateerde objecten

2 slaapkamer Appartement te koop in Calpe / Calp met zwembad - € 435.000 (Ref: 9757906) 2 slaapkamer Appartement te koop in Calpe / Calp met zwembad garage - € 420.000 (Ref: 9282636) 3 slaapkamer Appartement te koop in Calpe / Calp met zwembad garage - € 429.000 (Ref: 8992818) 2 slaapkamer Appartement te koop in Calpe / Calp met zwembad garage - € 422.500 (Ref: 6816370)

Advertenties

  1. Spanje
  2. Valencia
  3. Alicante
  4. Costa Blanca
  5. Calpe / Calp
  6. 3 slaapkamer Appartement te koop in Calpe / Calp met zwembad garage - € 464.000 (Ref: 9674215)
Bellen