thinkSPAIN Logo
  • Buy

    Property for Sale

    • See all properties for sale
    • Start your search using our filters
    • Use our map search
    • Draw your search area
    • Where? Use our location filters

    Popular real estate searches

    Apartments/Flats Fincas/Country Houses Townhouses Villas
    Garden Lift Luxury New Build Parking/Garage Pool Sea View Terrace/Balcony
    Alicante Almería Barcelona Benahavís Calvià Cartagena Costa Blanca Costa del Sol Dénia Estepona Girona Gran Canaria Ibiza Javea / Xàbia Madrid Mallorca Marbella Mazarrón Mijas Murcia Málaga Orihuela Palma de Mallorca Tenerife Torrevieja Valencia
    Browse all locations and property types
  • Rent

    Property for Rent

    • See all properties for rent
    • Holiday rentals
    • Start your search using our filters
    • Use our map search
    • Draw your search area

    Popular rental searches

    Apartments/Flats Fincas/Country Houses Townhouses Villas
    Garden Lift Mountain Views New Build Parking/Garage Pool Sea View Terrace/Balcony
    Alicante Almería Almuñécar Altea Barcelona Calvià Cartagena Costa Blanca Costa del Sol Dénia Estepona Gran Canaria Granada Ibiza Madrid Mallorca Marbella Murcia Málaga Orihuela Palma de Mallorca Tenerife Torre-Pacheco Torrevieja Torrox Valencia
    Browse all locations and property types
  • Sell

    I want to advertise on thinkSPAIN

    • I'm an estate agent & want to list my properties
    • I'm an owner and I want to advertise my property directly

    I'm looking for an estate agent in:

    Alicante Almería Barcelona Castellón Cádiz Girona Granada Málaga Tarragona Valencia
    See all estate agents
  • Where?

    Where to buy/rent?

    • Search by lifestyle needs (Location filters)
    • Browse locations by features/services
    • Use our map search
    • Draw your search area

    Popular location searches

    Alicante Almería Barcelona Castellón Cádiz Girona Gran Canaria Granada Ibiza Madrid Mallorca Murcia Málaga Tarragona Tenerife Valencia
  • Map / Draw Your Area

    Use our interactive map to find properties

    • Map search
    • Draw your search area

    Popular map searches

    Alicante Almería Barcelona Benahavís Calvià Cartagena Costa Blanca Costa del Sol Dénia Estepona Girona Gran Canaria Ibiza Javea / Xàbia Madrid Mallorca Marbella Mazarrón Mijas Murcia Málaga Orihuela Palma de Mallorca Tenerife Torrevieja Valencia
  • Directory

    What are you looking for?

    • Estate Agents
    • Surveyors
    • Architects / Architectural Design
    • Lawyers / Solicitors
    • Tax Consultants
    • Currency Brokers
    • Mortgage Brokers
    • Property Maintenance / Management

    Recent searches

    Lawyers / Solicitors in Costa Blanca Estate Agents in Lugo Estate Agents in Elche / Elx Lawyers / Solicitors in Dénia Estate Agents in Costa Cálida Lawyers / Solicitors in Costa Blanca Estate Agents in Costa Brava Estate Agents in Albox Surveyors in Valencia city Property Maintenance / Management in Alicante Estate Agents in Pliego Estate Agents in Costa Almería Estate Agents in Girona Lawyers / Solicitors in Costa Valencia
  • Help & Info

    How can we help you?

    • Articles & Guides
    • Jobs in Spain
    • Advertiser Login
    • Advertising with thinkSPAIN

    Popular searches

    Buying in Spain Moving to Spain Retiring in Spain Living in Spain Working in Spain News Real Estate Market Top Locations & Properties Finance, Legal & Taxes Finding the right property Spanish Lifestyle & Culture Areas in Spain Property Market Household Relocation Process Transportation Healthcare Alicante Languages & Integration Self-employment
  • Advertiser Login
thinkSPAIN Logo Properties

Villa for sale in Algorfa, Alicante

  • € 535,000
  • 291 m2
  • 4
  • 4
  • 332 m2
Properties

€ 535,000

Ref. 8965152

  • 4 bedroom Villa for sale in Algorfa with pool - € 535,000 (Ref: 8965152)
  • 4 bedroom Villa for sale in Algorfa with pool - € 535,000 (Ref: 8965152)
  • 4 bedroom Villa for sale in Algorfa with pool - € 535,000 (Ref: 8965152)
  • 4 bedroom Villa for sale in Algorfa with pool - € 535,000 (Ref: 8965152)
  • 4 bedroom Villa for sale in Algorfa with pool - € 535,000 (Ref: 8965152)
  • 4 bedroom Villa for sale in Algorfa with pool - € 535,000 (Ref: 8965152)
  • 4 bedroom Villa for sale in Algorfa with pool - € 535,000 (Ref: 8965152)
  • 4 bedroom Villa for sale in Algorfa with pool - € 535,000 (Ref: 8965152)
  • 4 bedroom Villa for sale in Algorfa with pool - € 535,000 (Ref: 8965152)
  • 4 bedroom Villa for sale in Algorfa with pool - € 535,000 (Ref: 8965152)
  • 4 bedroom Villa for sale in Algorfa with pool - € 535,000 (Ref: 8965152)
  • 4 bedroom Villa for sale in Algorfa with pool - € 535,000 (Ref: 8965152)
  • 4 bedroom Villa for sale in Algorfa with pool - € 535,000 (Ref: 8965152)
  • 4 bedroom Villa for sale in Algorfa with pool - € 535,000 (Ref: 8965152)
  • 4 bedroom Villa for sale in Algorfa with pool - € 535,000 (Ref: 8965152)
1/15

€ 535,000

Villa for sale in Algorfa, Alicante

  • 291 m2
  • 4
  • 4
  • 332 m2

Description

Two and three-bedroom contemporary golf villas in Algorfa Costa Blanca with pools
La Finca Golf, a renowned golf resort in Algorfa, Spain, is home to modern villas. It provides a lovely setting with its golf course, abundant vegetation, and breathtaking vistas. The resort is renowned for its well-kept grounds and lovely surroundings, which offer locals a tranquil and pleasant environment. Therefore, it is one of the ideal locations to.
The luxurious 18-hole golf course and other amenities are both easily accessible from the villas in Algorfa, Spain. The Almoradi Tennis Club is 3 km away, Algorfa's downtown is 5 km away, and Alicante International Airport is only 48 kilometers away from the villas.
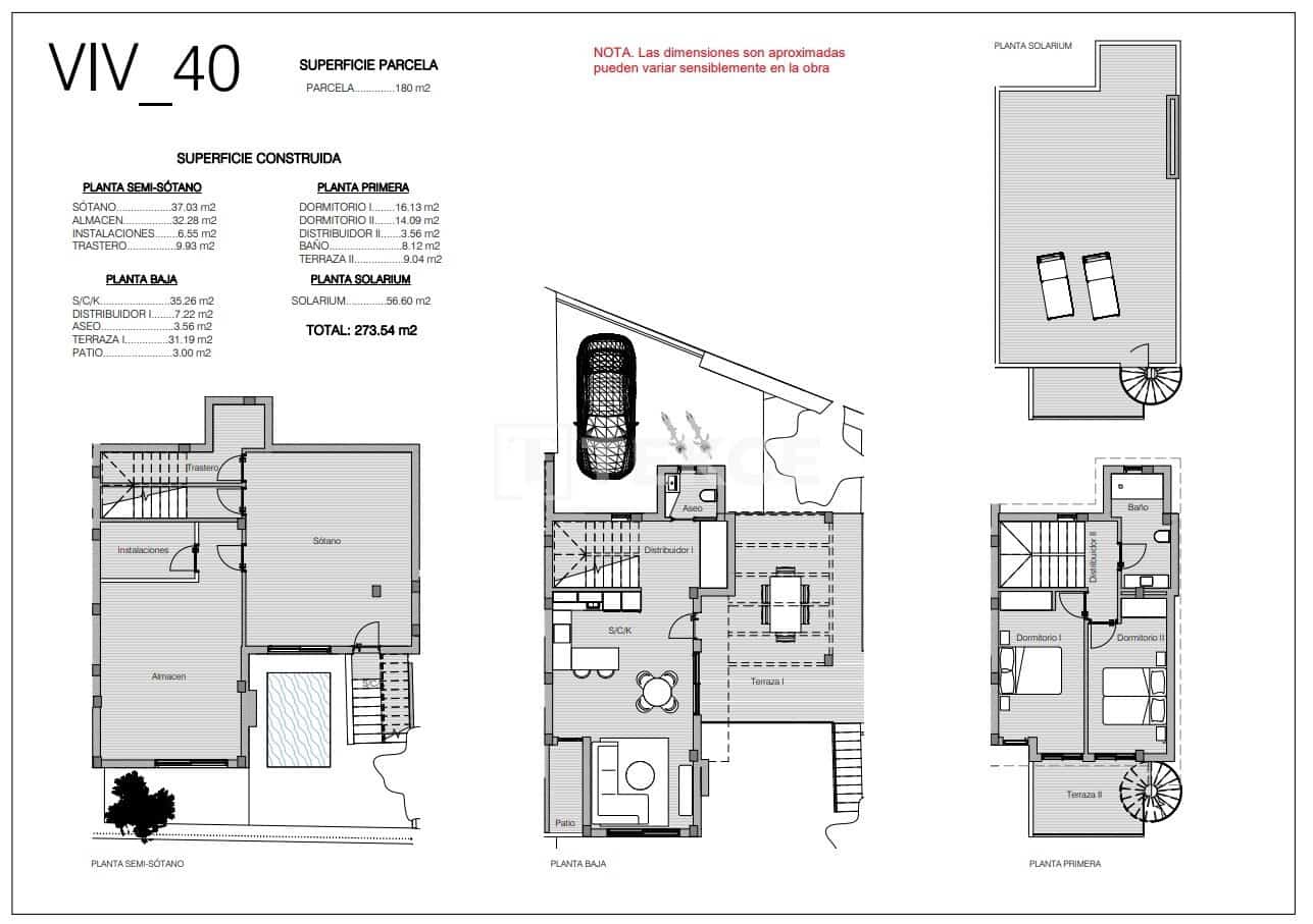
Private swimming pools and gated off-street parking are available on the roomy plots, which range in size from 180 to 332 sqm.
The detached models on the ground floor have a spacious living area with huge French-style windows that let in plenty of natural light, an open-plan dining area, a fully equipped open-plan kitchen with an island feature, and a ground-floor toilet room. The second floor has two or three double bedrooms with fitted wardrobes, depending on the model, and two bathrooms with walk-in showers, one of which is an en-suite to the master. Underground in the basement, there are three enormous rooms that might easily be turned into additional bedrooms. There is also a private rooftop sunbathing space on the roof.
The semi-detached versions offer a large open-plan kitchen and dining space, a ground-floor toilet room, and a large living area with French-style windows. There are two double bedrooms upstairs, both with fitted wardrobes and access to the spacious sun terrace, as well as a bathroom with a walk-in shower. Underground in the basement, there are three large rooms that might easily be turned into additional bedrooms. You also have a private rooftop sunbathing space on the roof.
ALC-00778

Location

Algorfa, Alicante The location has not been provided.

Features

  • Villa
  • Bedrooms: 4
  • Bathrooms: 4
  • Build Size: 291 m2
  • Plot: 332 m2
  • Storeys: 1
  • Year Built: 2025
  • New Build
  • Private Pool
  • Golf Course View
  • Private Garden
  • Air Conditioning
  • Terrace/Balcony
  • Mountain Views
  • Fitted Wardrobes
  • Energy Efficiency Rating: In Progress

How can we help you?

Is something wrong with the Ad?

Tell us about the issue so we can fix it

Mortgage calculator

€
€
%

€ 1,698 per month*

+ € 55,200 taxes (€ 53,500) & expenses (€ 1,700)*

*Please note that the results are only a guide and not a mortgage offer or quote.

Contact the Advertiser

How can we help you?

€

This field is required

Check the error(s) above
If the advertiser has provided a contact telephone number, you will see it after you have filled in and sent this enquiry form.

Ref. 8965152

By submitting this form, you confirm that you agree to our Terms of Use and Privacy Policy.

Share

Related properties

3 bedroom Villa for sale in Algorfa with pool garage - € 519,900 (Ref: 9492716) 3 bedroom Villa for sale in Algorfa with pool - € 600,000 (Ref: 9622165) 3 bedroom Villa for sale in Algorfa with pool - € 599,990 (Ref: 9432368) 3 bedroom Villa for sale in Algorfa with pool garage - € 550,000 (Ref: 9580414)

Advertisement

  1. Spain
  2. Valencia
  3. Alicante
  4. Costa Blanca
  5. Algorfa
  6. 4 bedroom Villa for sale in Algorfa with pool - € 535,000 (Ref: 8965152)