thinkSPAIN Logo
  • Buy

    Property for Sale

    • See all properties for sale
    • Start your search using our filters
    • Use our map search
    • Draw your search area
    • Where? Use our location filters

    Popular real estate searches

    Apartments/Flats Fincas/Country Houses Townhouses Villas
    Garden Lift Luxury New Build Parking/Garage Pool Sea View Terrace/Balcony
    Alicante Almería Barcelona Benahavís Calpe / Calp Calvià Cartagena Costa Blanca Costa del Sol Dénia Estepona Girona Gran Canaria Ibiza Madrid Mallorca Marbella Mazarrón Mijas Murcia Málaga Orihuela Palma de Mallorca Tenerife Torrevieja Valencia
    Browse all locations and property types
  • Rent

    Property for Rent

    • See all properties for rent
    • Holiday rentals
    • Start your search using our filters
    • Use our map search
    • Draw your search area

    Popular rental searches

    Apartments/Flats Fincas/Country Houses Townhouses Villas
    Garden Lift Mountain Views Parking/Garage Pool Sea View Seafront/Beachfront Terrace/Balcony
    Alicante Almería Almuñécar Altea Barcelona Calvià Cartagena Costa Blanca Costa del Sol Dénia Estepona Gran Canaria Granada Ibiza Madrid Mallorca Marbella Murcia Málaga Orihuela Palma de Mallorca San Javier Tenerife Torrevieja Torrox Valencia
    Browse all locations and property types
  • Sell

    I want to advertise on thinkSPAIN

    • I'm an estate agent & want to list my properties
    • I'm an owner and I want to advertise my property directly

    I'm looking for an estate agent in:

    Alicante Almería Barcelona Castellón Cádiz Girona Granada Málaga Tarragona Valencia
    See all estate agents
  • Where?

    Where to buy/rent?

    • Search by lifestyle needs (Location filters)
    • Browse locations by features/services
    • Use our map search
    • Draw your search area

    Popular location searches

    Alicante Almería Barcelona Castellón Cádiz Girona Gran Canaria Granada Ibiza Madrid Mallorca Murcia Málaga Tarragona Tenerife Valencia
  • Map / Draw Your Area

    Use our interactive map to find properties

    • Map search
    • Draw your search area

    Popular map searches

    Alicante Almería Barcelona Benahavís Calpe / Calp Calvià Cartagena Costa Blanca Costa del Sol Dénia Estepona Girona Gran Canaria Ibiza Madrid Mallorca Marbella Mazarrón Mijas Murcia Málaga Orihuela Palma de Mallorca Tenerife Torrevieja Valencia
  • Directory

    What are you looking for?

    • Estate Agents
    • Surveyors
    • Architects / Architectural Design
    • Lawyers / Solicitors
    • Tax Consultants
    • Currency Brokers
    • Mortgage Brokers
    • Property Maintenance / Management

    Recent searches

    Lawyers / Solicitors in Valencia city Lawyers / Solicitors in Costa Blanca Estate Agents in Torre-Pacheco Estate Agents in Conil de la Frontera Estate Agents in Alicante / Alacant city Lawyers / Solicitors in Salobreña Estate Agents in Costa Brava Estate Agents in Costa del Sol Estate Agents in San Javier Property Maintenance / Management in Calpe / Calp Estate Agents in San Miguel de Salinas Lawyers / Solicitors in Costa Blanca Lawyers / Solicitors in Costa Valencia Estate Agents in Calpe / Calp
  • Help & Info

    How can we help you?

    • Articles & Guides
    • Jobs in Spain
    • Advertiser Login
    • Advertising with thinkSPAIN

    Popular searches

    Buying in Spain Moving to Spain Retiring in Spain Living in Spain Working in Spain News Real Estate Market Top Locations & Properties Finance, Legal & Taxes Finding the right property Areas in Spain Spanish Lifestyle & Culture Property Market Household Relocation Process Transportation Healthcare Alicante Languages & Integration Self-employment
  • Advertiser Login
thinkSPAIN Logo Properties

Flat for sale in Los Monteros, Marbella, Málaga

  • € 1,065,000
  • 197 m2
  • 3
  • 2
  • 197 m2
Properties

€ 1,065,000

Ref. 8965514

  • 3 bedroom Flat for sale in Los Monteros with pool - € 1,065,000 (Ref: 8965514)
  • 3 bedroom Flat for sale in Los Monteros with pool - € 1,065,000 (Ref: 8965514)
  • 3 bedroom Flat for sale in Los Monteros with pool - € 1,065,000 (Ref: 8965514)
  • 3 bedroom Flat for sale in Los Monteros with pool - € 1,065,000 (Ref: 8965514)
  • 3 bedroom Flat for sale in Los Monteros with pool - € 1,065,000 (Ref: 8965514)
  • 3 bedroom Flat for sale in Los Monteros with pool - € 1,065,000 (Ref: 8965514)
  • 3 bedroom Flat for sale in Los Monteros with pool - € 1,065,000 (Ref: 8965514)
  • 3 bedroom Flat for sale in Los Monteros with pool - € 1,065,000 (Ref: 8965514)
  • 3 bedroom Flat for sale in Los Monteros with pool - € 1,065,000 (Ref: 8965514)
  • 3 bedroom Flat for sale in Los Monteros with pool - € 1,065,000 (Ref: 8965514)
  • 3 bedroom Flat for sale in Los Monteros with pool - € 1,065,000 (Ref: 8965514)
  • 3 bedroom Flat for sale in Los Monteros with pool - € 1,065,000 (Ref: 8965514)
  • 3 bedroom Flat for sale in Los Monteros with pool - € 1,065,000 (Ref: 8965514)
  • 3 bedroom Flat for sale in Los Monteros with pool - € 1,065,000 (Ref: 8965514)
  • 3 bedroom Flat for sale in Los Monteros with pool - € 1,065,000 (Ref: 8965514)
  • 3 bedroom Flat for sale in Los Monteros with pool - € 1,065,000 (Ref: 8965514)
  • 3 bedroom Flat for sale in Los Monteros with pool - € 1,065,000 (Ref: 8965514)
  • 3 bedroom Flat for sale in Los Monteros with pool - € 1,065,000 (Ref: 8965514)
  • 3 bedroom Flat for sale in Los Monteros with pool - € 1,065,000 (Ref: 8965514)
  • 3 bedroom Flat for sale in Los Monteros with pool - € 1,065,000 (Ref: 8965514)
  • 3 bedroom Flat for sale in Los Monteros with pool - € 1,065,000 (Ref: 8965514)
1/21

€ 1,065,000

Flat for sale in Los Monteros, Marbella, Málaga

  • 197 m2
  • 3
  • 2
  • 197 m2

Description

Stylish properties near the amenities in Marbella.

The properties are in a complex in Marbella, a famous resort on the Costa del Sol with unique features. Marbella is a favorite destination for both living and vacationing, with beautiful sea views, impressive views, and a wide option of amenities.

The properties are situated in a prime location, just 5 km from the beaches. It takes approximately 15 minutes to reach the center of Marbella, where you can find everything you need. The biggest shopping center in the area is 8 km away, Puerto Banús is 15 km away, Málaga Airport is about 40 minutes away, and Málaga City is about 50 minutes away.

The project design is intertwined with nature. The project offers excellent amenities such as landscaped gardens, pools, a gym with a terrace, a pool bar, a spa with a heated pool, and a co-working area. In addition, it has a B energy efficiency certificate.

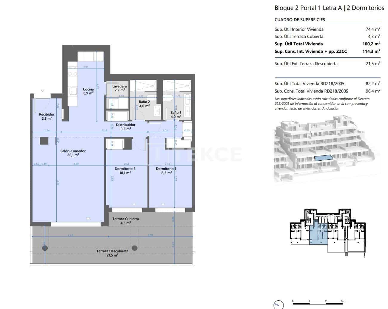
The properties for sale are available in two- and three-bedroom layouts. Quality and eco-friendly materials are selected for the interior design of the properties. The properties are delivered with kitchen cabinets, a smart home system, and air conditioning in each room.

Location

Los Monteros, Marbella, Málaga The location has not been provided.

Features

  • Flat
  • Bedrooms: 3
  • Bathrooms: 2
  • Build Size: 197 m2
  • Plot: 197 m2
  • Storeys: 1
  • Year Built: 2024
  • New Build
  • Communal Pool
  • Sea View
  • Communal Garden
  • Air Conditioning
  • Lift
  • Terrace/Balcony
  • Mountain Views
  • Heating
  • Storeroom
  • West Orientation
  • Energy Certificate (Consumption): B

How can we help you?

Is something wrong with the Ad?

Tell us about the issue so we can fix it

Mortgage calculator

€
€
%

€ 3,382 per month*

+ € 76,250 taxes (€ 74,550) & expenses (€ 1,700)*

*Please note that the results are only a guide and not a mortgage offer or quote.

Contact the Advertiser

How can we help you?

€

This field is required

Check the error(s) above
If the advertiser has provided a contact telephone number, you will see it after you have filled in and sent this enquiry form.

Ref. 8965514

By submitting this form, you confirm that you agree to our Terms of Use and Privacy Policy.

Share

Related properties

3 bedroom Flat for sale in Los Monteros, Marbella with pool - € 900,000 (Ref: 9195171) 5 bedroom Flat for sale in Costabella, Marbella with pool garage - € 1,050,000 (Ref: 9211591) 2 bedroom Flat for sale in Bahía de Marbella, Marbella with pool garage - € 1,050,000 (Ref: 9542132) 2 bedroom Flat for sale in Río Real, Marbella with pool garage - € 860,000 (Ref: 9412744)

Advertisement

  1. Spain
  2. Andalucia
  3. Málaga
  4. Costa del Sol
  5. Marbella
  6. Las Chapas - El Rosario
  7. Las Chapas
  8. Los Monteros
  9. 3 bedroom Flat for sale in Los Monteros, Marbella with pool - € 1,065,000 (Ref: 8965514)