thinkSPAIN Logo
  • Buy

    Property for Sale

    • See all properties for sale
    • Start your search using our filters
    • Use our map search
    • Draw your search area
    • Where? Use our location filters

    Popular real estate searches

    Apartments/Flats Fincas/Country Houses Townhouses Villas
    Garden Lift Luxury New Build Parking/Garage Pool Sea View Terrace/Balcony
    Alicante Almería Barcelona Benahavís Calpe / Calp Calvià Cartagena Costa Blanca Costa del Sol Dénia Estepona Fuerteventura Girona Ibiza Madrid Mallorca Marbella Mazarrón Mijas Murcia Málaga Orihuela Palma de Mallorca Tenerife Torrevieja Valencia
    Browse all locations and property types
  • Rent

    Property for Rent

    • See all properties for rent
    • Holiday rentals
    • Start your search using our filters
    • Use our map search
    • Draw your search area

    Popular rental searches

    Apartments/Flats Fincas/Country Houses Townhouses Villas
    Garden Lift Mountain Views Parking/Garage Pool Sea View Seafront/Beachfront Terrace/Balcony
    Alicante Almería Almuñécar Altea Barcelona Calvià Cartagena Costa Blanca Costa del Sol Dénia Estepona Gran Canaria Granada Ibiza Madrid Mallorca Marbella Murcia Málaga Orihuela Palma de Mallorca Tenerife Torre-Pacheco Torrevieja Torrox Valencia
    Browse all locations and property types
  • Sell

    I want to advertise on thinkSPAIN

    • I'm an estate agent & want to list my properties
    • I'm an owner and I want to advertise my property directly

    I'm looking for an estate agent in:

    Alicante Almería Barcelona Castellón Cádiz Girona Granada Málaga Tarragona Valencia
    See all estate agents
  • Where?

    Where to buy/rent?

    • Search by lifestyle needs (Location filters)
    • Browse locations by features/services
    • Use our map search
    • Draw your search area

    Popular location searches

    Alicante Almería Barcelona Castellón Cádiz Fuerteventura Girona Granada Ibiza Madrid Mallorca Murcia Málaga Tarragona Tenerife Valencia
  • Map / Draw Your Area

    Use our interactive map to find properties

    • Map search
    • Draw your search area

    Popular map searches

    Alicante Almería Barcelona Benahavís Calpe / Calp Calvià Cartagena Costa Blanca Costa del Sol Dénia Estepona Fuerteventura Girona Ibiza Madrid Mallorca Marbella Mazarrón Mijas Murcia Málaga Orihuela Palma de Mallorca Tenerife Torrevieja Valencia
  • Directory

    What are you looking for?

    • Estate Agents
    • Surveyors
    • Architects / Architectural Design
    • Lawyers / Solicitors
    • Tax Consultants
    • Currency Brokers
    • Mortgage Brokers
    • Property Maintenance / Management

    Recent searches

    Lawyers / Solicitors in Huelva Estate Agents in Granada Lawyers / Solicitors in Granada Estate Agents in Santa Cruz de Tenerife Lawyers / Solicitors in Costa Valencia Estate Agents in Alcaucín Estate Agents in Teulada-Moraira Estate Agents in Costa Almería Estate Agents in Javea / Xàbia Estate Agents in Almería Lawyers / Solicitors in Alicante Mortgage Brokers in Madrid city Mortgage Brokers in Málaga Estate Agents in Los Alcázares
  • Help & Info

    How can we help you?

    • Articles & Guides
    • Jobs in Spain
    • Advertiser Login
    • Advertising with thinkSPAIN
    • Advertiser FAQs

    Popular searches

    Buying in Spain Moving to Spain Retiring in Spain Living in Spain Working in Spain News Real Estate Market Top Locations & Properties Finance, Legal & Taxes Finding the right property Areas in Spain Spanish Lifestyle & Culture Property Market Relocation Process Household Transportation Healthcare Alicante Security Languages & Integration
  • Advertiser Login
thinkSPAIN Logo Properties

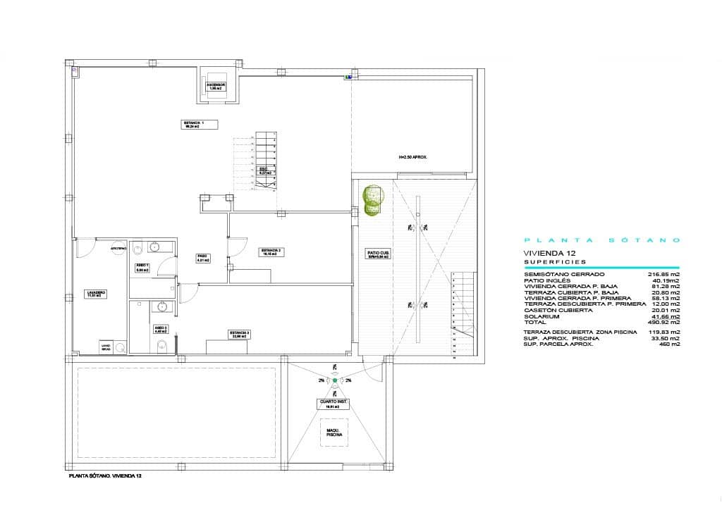
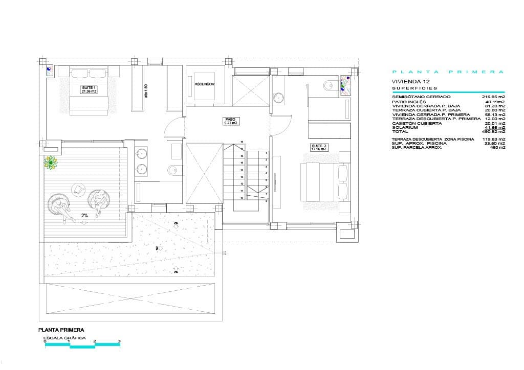
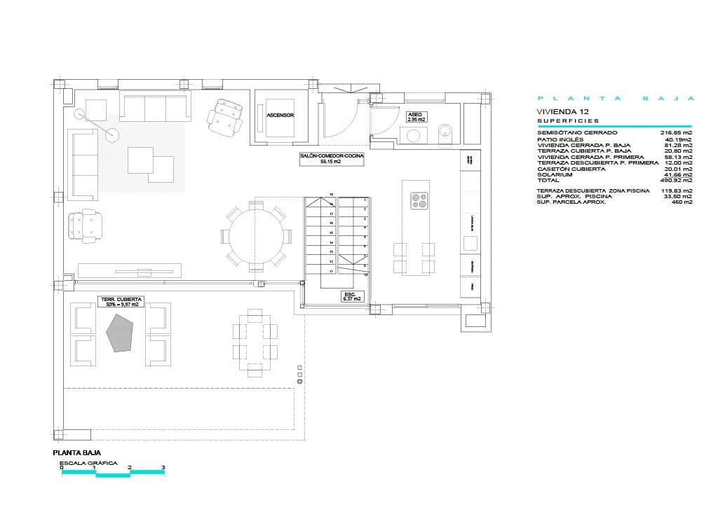
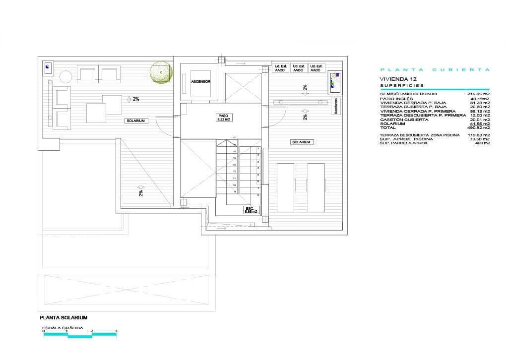
Villa for sale in Finestrat, Alicante

  • € 1,350,000
  • 490 m2
  • 4
  • 5
  • 460 m2
Properties

€ 1,350,000

Ref. 9044024

Call
  • 4 bedroom Villa for sale in Finestrat with pool garage - € 1,350,000 (Ref: 9044024)
  • 4 bedroom Villa for sale in Finestrat with pool garage - € 1,350,000 (Ref: 9044024)
  • 4 bedroom Villa for sale in Finestrat with pool garage - € 1,350,000 (Ref: 9044024)
  • 4 bedroom Villa for sale in Finestrat with pool garage - € 1,350,000 (Ref: 9044024)
  • 4 bedroom Villa for sale in Finestrat with pool garage - € 1,350,000 (Ref: 9044024)
  • 4 bedroom Villa for sale in Finestrat with pool garage - € 1,350,000 (Ref: 9044024)
  • 4 bedroom Villa for sale in Finestrat with pool garage - € 1,350,000 (Ref: 9044024)
  • 4 bedroom Villa for sale in Finestrat with pool garage - € 1,350,000 (Ref: 9044024)
  • 4 bedroom Villa for sale in Finestrat with pool garage - € 1,350,000 (Ref: 9044024)
  • 4 bedroom Villa for sale in Finestrat with pool garage - € 1,350,000 (Ref: 9044024)
  • 4 bedroom Villa for sale in Finestrat with pool garage - € 1,350,000 (Ref: 9044024)
  • 4 bedroom Villa for sale in Finestrat with pool garage - € 1,350,000 (Ref: 9044024)
  • 4 bedroom Villa for sale in Finestrat with pool garage - € 1,350,000 (Ref: 9044024)
  • 4 bedroom Villa for sale in Finestrat with pool garage - € 1,350,000 (Ref: 9044024)
  • 4 bedroom Villa for sale in Finestrat with pool garage - € 1,350,000 (Ref: 9044024)
  • 4 bedroom Villa for sale in Finestrat with pool garage - € 1,350,000 (Ref: 9044024)
  • 4 bedroom Villa for sale in Finestrat with pool garage - € 1,350,000 (Ref: 9044024)
  • 4 bedroom Villa for sale in Finestrat with pool garage - € 1,350,000 (Ref: 9044024)
  • 4 bedroom Villa for sale in Finestrat with pool garage - € 1,350,000 (Ref: 9044024)
  • 4 bedroom Villa for sale in Finestrat with pool garage - € 1,350,000 (Ref: 9044024)
  • 4 bedroom Villa for sale in Finestrat with pool garage - € 1,350,000 (Ref: 9044024)
  • 4 bedroom Villa for sale in Finestrat with pool garage - € 1,350,000 (Ref: 9044024)
  • 4 bedroom Villa for sale in Finestrat with pool garage - € 1,350,000 (Ref: 9044024)
  • 4 bedroom Villa for sale in Finestrat with pool garage - € 1,350,000 (Ref: 9044024)
  • 4 bedroom Villa for sale in Finestrat with pool garage - € 1,350,000 (Ref: 9044024)
  • 4 bedroom Villa for sale in Finestrat with pool garage - € 1,350,000 (Ref: 9044024)
  • 4 bedroom Villa for sale in Finestrat with pool garage - € 1,350,000 (Ref: 9044024)
  • 4 bedroom Villa for sale in Finestrat with pool garage - € 1,350,000 (Ref: 9044024)
  • 4 bedroom Villa for sale in Finestrat with pool garage - € 1,350,000 (Ref: 9044024)
  • 4 bedroom Villa for sale in Finestrat with pool garage - € 1,350,000 (Ref: 9044024)
  • 4 bedroom Villa for sale in Finestrat with pool garage - € 1,350,000 (Ref: 9044024)
  • 4 bedroom Villa for sale in Finestrat with pool garage - € 1,350,000 (Ref: 9044024)
  • 4 bedroom Villa for sale in Finestrat with pool garage - € 1,350,000 (Ref: 9044024)
  • 4 bedroom Villa for sale in Finestrat with pool garage - € 1,350,000 (Ref: 9044024)
  • 4 bedroom Villa for sale in Finestrat with pool garage - € 1,350,000 (Ref: 9044024)
  • 4 bedroom Villa for sale in Finestrat with pool garage - € 1,350,000 (Ref: 9044024)
  • 4 bedroom Villa for sale in Finestrat with pool garage - € 1,350,000 (Ref: 9044024)
  • 4 bedroom Villa for sale in Finestrat with pool garage - € 1,350,000 (Ref: 9044024)
  • 4 bedroom Villa for sale in Finestrat with pool garage - € 1,350,000 (Ref: 9044024)
  • 4 bedroom Villa for sale in Finestrat with pool garage - € 1,350,000 (Ref: 9044024)
  • 4 bedroom Villa for sale in Finestrat with pool garage - € 1,350,000 (Ref: 9044024)
  • 4 bedroom Villa for sale in Finestrat with pool garage - € 1,350,000 (Ref: 9044024)
  • 4 bedroom Villa for sale in Finestrat with pool garage - € 1,350,000 (Ref: 9044024)
  • 4 bedroom Villa for sale in Finestrat with pool garage - € 1,350,000 (Ref: 9044024)
  • 4 bedroom Villa for sale in Finestrat with pool garage - € 1,350,000 (Ref: 9044024)
  • 4 bedroom Villa for sale in Finestrat with pool garage - € 1,350,000 (Ref: 9044024)
  • 4 bedroom Villa for sale in Finestrat with pool garage - € 1,350,000 (Ref: 9044024)
  • 4 bedroom Villa for sale in Finestrat with pool garage - € 1,350,000 (Ref: 9044024)
  • 4 bedroom Villa for sale in Finestrat with pool garage - € 1,350,000 (Ref: 9044024)
  • 4 bedroom Villa for sale in Finestrat with pool garage - € 1,350,000 (Ref: 9044024)
1/50

€ 1,350,000

Villa for sale in Finestrat, Alicante

  • 490 m2
  • 4
  • 5
  • 460 m2

Description

Exclusive luxury villa with panoramic views
This modern and elegant property offers the highest level of comfort and refined design. The light-flooded rooms and the impressive views over a total area of 490 m² highlight the luxurious lifestyle in one of the most sought-after regions.
The spacious living and dining area with large windows opens up to the terrace, creating a stylish, cozy atmosphere with modern accents. A separate leisure room and a luxurious elevator connecting all levels ensure comfort and entertainment.
The expansive terrace, measuring approximately 120 m² in the pool area, invites relaxation and offers spectacular views of the surrounding hills and the sea. The large pool and seamless transitions between indoor and outdoor spaces make Mediterranean living perfect.
The light-filled bedrooms and modern bathrooms, featuring high-quality materials, create a luxurious and cozy living environment.
Finestrat is just 10 minutes from Benidorm, in the heart of the Costa Blanca and surrounded by important towns and cities such as Alicante, Benidorm, Elche, Torrevieja and Calpe. There is also easy motorway access to the Elche-Alicante International Airport which offers important national, European and international flight connections.
Finestrat is a picturesque coastal town that combines the silence of the rocky mountain sides and the green forest summits of the Puig Campana mountain range with the cosmopolitan attraction of its sandy bay, truly a relaxing family destination. Right before one’s eyes emerges Finestrat ́s historical old town, elevated some 238 meters above sea level. The winding streets and facades of this medieval town with white painted buildings and large doorways manifest the Moorish inspiration with vigor.
The fragrance of the town's pine trees, carob trees, almond and olive plantations fills the air and adds character to Finestrat’s already existing charm. Just 9 km away is the beach of Cala de Finestrat, whose golden sandy beach with crystalline waters is a treasure closely guarded by the immediate residential and commercial areas. Various residential complexes are situated at the foot of the Sierra Cortina mountains.
This is a privileged area due to its proximity to important towns and with all the necessary services. It is also just a few minutes’ drive from the Villaitana Golf Course, the luxury five star hotels Asia Gardens and Melia Villaitana, from the A7 motorway and from more beautiful towns and mountains in the surrounding areas.

Location

Finestrat, Alicante The location has not been provided.

Features

  • Villa
  • Bedrooms: 4
  • Bathrooms: 5
  • Build Size: 490 m2
  • Plot: 460 m2
  • New Build
  • Private Pool
  • Sea View
  • Parking/Garage
  • Near Golf
  • Garden
  • Air Conditioning
  • Lift
  • Terrace/Balcony
  • Mountain Views
  • Fitted Wardrobes
  • Energy Efficiency Rating: In Progress

How can we help you?

Is something wrong with the Ad?

Tell us about the issue so we can fix it

Mortgage calculator

€
€
%

€ 4,287 per month*

+ € 136,700 taxes (€ 135,000) & expenses (€ 1,700)*

*Please note that the results are only a guide and not a mortgage offer or quote.

Contact the Advertiser

How can we help you?

€

This field is required

Check the error(s) above

Ref. 9044024

By submitting this form, you confirm that you agree to our Terms of Use and Privacy Policy.

Share

Related properties

3 bedroom Villa for sale in Finestrat with pool garage - € 1,200,000 (Ref: 9061721) 4 bedroom Villa for sale in Finestrat with pool garage - € 1,350,000 (Ref: 9021431) 4 bedroom Villa for sale in Finestrat with pool garage - € 1,100,000 (Ref: 9830445) 5 bedroom Villa for sale in Finestrat with pool garage - € 1,395,000 (Ref: 9802869)

Advertisement

  1. Spain
  2. Valencia
  3. Alicante
  4. Costa Blanca
  5. Finestrat
  6. 4 bedroom Villa for sale in Finestrat with pool garage - € 1,350,000 (Ref: 9044024)
Call