thinkSPAIN Logo
  • Buy

    Property for Sale

    • See all properties for sale
    • Start your search using our filters
    • Use our map search
    • Draw your search area
    • Where? Use our location filters

    Popular real estate searches

    Apartments/Flats Fincas/Country Houses Townhouses Villas
    Garden Lift Luxury New Build Parking/Garage Pool Sea View Terrace/Balcony
    Alicante Almería Barcelona Benahavís Calpe / Calp Calvià Cartagena Costa Blanca Costa del Sol Dénia Estepona Girona Gran Canaria Ibiza Madrid Mallorca Marbella Mazarrón Mijas Murcia Málaga Orihuela Palma de Mallorca Tenerife Torrevieja Valencia
    Browse all locations and property types
  • Rent

    Property for Rent

    • See all properties for rent
    • Holiday rentals
    • Start your search using our filters
    • Use our map search
    • Draw your search area

    Popular rental searches

    Apartments/Flats Fincas/Country Houses Townhouses Villas
    Garden Lift Mountain Views New Build Parking/Garage Pool Sea View Terrace/Balcony
    Alicante Almería Almuñécar Altea Barcelona Calvià Cartagena Costa Blanca Costa del Sol Dénia Estepona Gran Canaria Granada Ibiza Madrid Mallorca Marbella Murcia Málaga Orihuela Palma de Mallorca Tenerife Torre-Pacheco Torrevieja Torrox Valencia
    Browse all locations and property types
  • Sell

    I want to advertise on thinkSPAIN

    • I'm an estate agent & want to list my properties
    • I'm an owner and I want to advertise my property directly

    I'm looking for an estate agent in:

    Alicante Almería Barcelona Castellón Cádiz Girona Granada Málaga Tarragona Valencia
    See all estate agents
  • Where?

    Where to buy/rent?

    • Search by lifestyle needs (Location filters)
    • Browse locations by features/services
    • Use our map search
    • Draw your search area

    Popular location searches

    Alicante Almería Barcelona Castellón Cádiz Girona Gran Canaria Granada Ibiza Madrid Mallorca Murcia Málaga Tarragona Tenerife Valencia
  • Map / Draw Your Area

    Use our interactive map to find properties

    • Map search
    • Draw your search area

    Popular map searches

    Alicante Almería Barcelona Benahavís Calpe / Calp Calvià Cartagena Costa Blanca Costa del Sol Dénia Estepona Girona Gran Canaria Ibiza Madrid Mallorca Marbella Mazarrón Mijas Murcia Málaga Orihuela Palma de Mallorca Tenerife Torrevieja Valencia
  • Directory

    What are you looking for?

    • Estate Agents
    • Surveyors
    • Architects / Architectural Design
    • Lawyers / Solicitors
    • Tax Consultants
    • Currency Brokers
    • Mortgage Brokers
    • Property Maintenance / Management

    Recent searches

    Property Maintenance / Management in Costa Blanca Lawyers / Solicitors in Costa Blanca Estate Agents in Roses Estate Agents in San Fulgencio Lawyers / Solicitors in Costa Blanca Estate Agents in Girona Estate Agents in Guardamar del Segura Estate Agents in Benitachell / Benitatxell Estate Agents in Mogán Surveyors in Costa Valencia Estate Agents in Ibiza / Eivissa town Estate Agents in Calvià Lawyers / Solicitors in Huelva Lawyers / Solicitors in Costa Blanca
  • Help & Info

    How can we help you?

    • Articles & Guides
    • Jobs in Spain
    • Advertiser Login
    • Advertising with thinkSPAIN

    Popular searches

    Buying in Spain Moving to Spain Retiring in Spain Living in Spain Working in Spain News Real Estate Market Top Locations & Properties Finance, Legal & Taxes Finding the right property Areas in Spain Spanish Lifestyle & Culture Property Market Household Relocation Process Transportation Healthcare Alicante Languages & Integration Finding a job
  • Advertiser Login
thinkSPAIN Logo Properties

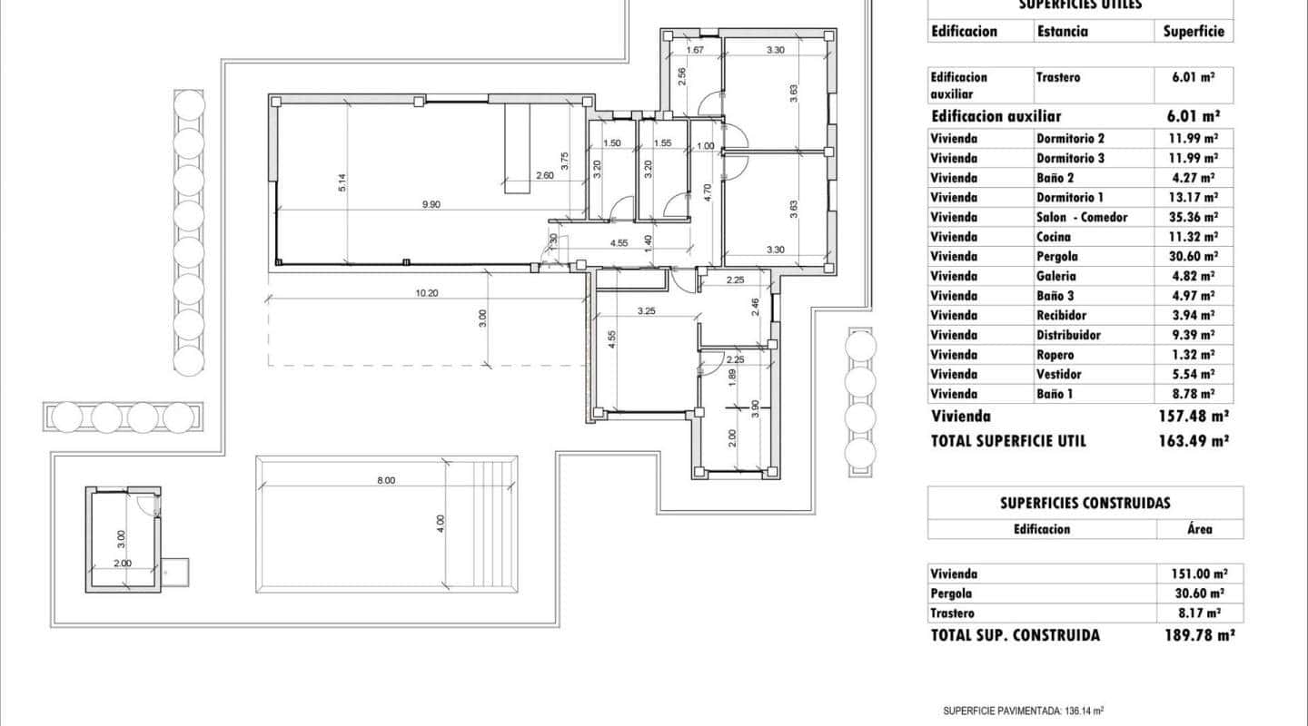
Villa for sale in Aspe, Alicante

  • € 452,000
  • 189 m2
  • 3
  • 3
  • 13172 m2

€ 452,000 Ref. 9462642

Properties
Ref. 9462642
Call
  • 3 bedroom Villa for sale in Aspe with pool - € 452,000 (Ref: 9462642)
  • 3 bedroom Villa for sale in Aspe with pool - € 452,000 (Ref: 9462642)
  • 3 bedroom Villa for sale in Aspe with pool - € 452,000 (Ref: 9462642)
  • 3 bedroom Villa for sale in Aspe with pool - € 452,000 (Ref: 9462642)
  • 3 bedroom Villa for sale in Aspe with pool - € 452,000 (Ref: 9462642)
  • 3 bedroom Villa for sale in Aspe with pool - € 452,000 (Ref: 9462642)
  • 3 bedroom Villa for sale in Aspe with pool - € 452,000 (Ref: 9462642)
  • 3 bedroom Villa for sale in Aspe with pool - € 452,000 (Ref: 9462642)
  • 3 bedroom Villa for sale in Aspe with pool - € 452,000 (Ref: 9462642)
  • 3 bedroom Villa for sale in Aspe with pool - € 452,000 (Ref: 9462642)
  • 3 bedroom Villa for sale in Aspe with pool - € 452,000 (Ref: 9462642)
  • 3 bedroom Villa for sale in Aspe with pool - € 452,000 (Ref: 9462642)
  • 3 bedroom Villa for sale in Aspe with pool - € 452,000 (Ref: 9462642)
  • 3 bedroom Villa for sale in Aspe with pool - € 452,000 (Ref: 9462642)
  • 3 bedroom Villa for sale in Aspe with pool - € 452,000 (Ref: 9462642)
  • 3 bedroom Villa for sale in Aspe with pool - € 452,000 (Ref: 9462642)
  • 3 bedroom Villa for sale in Aspe with pool - € 452,000 (Ref: 9462642)
  • 3 bedroom Villa for sale in Aspe with pool - € 452,000 (Ref: 9462642)
  • 3 bedroom Villa for sale in Aspe with pool - € 452,000 (Ref: 9462642)
  • 3 bedroom Villa for sale in Aspe with pool - € 452,000 (Ref: 9462642)
  • 3 bedroom Villa for sale in Aspe with pool - € 452,000 (Ref: 9462642)
1/21

€ 452,000

Villa for sale in Aspe, Alicante

  • 189 m2
  • 3
  • 3
  • 13172 m2

Description

Newly built villas located in the municipality of Aspe.

Newly built villas with several models to choose from, with 2, 3 or 4 bedrooms, on one or two floors and built with slabs or with a structure: depending on the model and the plot chosen, the exact price will be calculated.

All the villas are built on rustic plots of over 10,000 m2, of which around 2,500 m2 will be fenced off.

The villas have an open-plan kitchen with living room, built-in wardrobes, private swimming pool, porch, storage room and outdoor parking space.

There are several plots to choose from. The price is based on a plot priced at €75,000 (if another plot is chosen, the difference will be paid or credited according to the price of the plot).

Self-build project, delivery in approximately 12 months from the granting of the licence.

If you are looking for a quiet environment, close to typical Spanish villages away from tourist crowds, surrounded by mountains, with a very large plot and about 30 minutes from the sea, this is your home.

Aspe is a typical Spanish village with all the amenities for everyday life, surrounded by mountains and with several natural areas nearby where you can go hiking or mountain biking.

Located 25 km from the beach, 9 km from Elche and about 20 km from Alicante airport.

Location

Aspe, Alicante Location provided by the Advertiser

Features

  • Villa
  • Bedrooms: 3
  • Bathrooms: 3
  • Build Size: 189 m2
  • Plot: 13172 m2
  • New Build
  • Pool
  • Terrace/Balcony
  • Energy Efficiency Rating: In Progress

How can we help you?

Is something wrong with the Ad?

Tell us about the issue so we can fix it

Mortgage calculator

€
€
%

€ 1,435 per month*

+ € 46,900 taxes (€ 45,200) & expenses (€ 1,700)*

*Please note that the results are only a guide and not a mortgage offer or quote.

Contact the Advertiser

How can we help you?

€

This field is required

Check the error(s) above
+34 965 020 388

Ref. 9462642

By submitting this form, you confirm that you agree to our Terms of Use and Privacy Policy.

Share

Related properties

4 bedroom Villa for sale in Aspe - € 488,000 (Ref: 9597067) 4 bedroom Villa for sale in Aspe with pool - € 488,000 (Ref: 9552541) 3 bedroom Villa for sale in Aspe with pool - € 374,000 (Ref: 9550218) 3 bedroom Villa for sale in Aspe with pool - € 372,000 (Ref: 9552543)

Advertisement

  1. Spain
  2. Valencia
  3. Alicante
  4. Aspe
  5. 3 bedroom Villa for sale in Aspe with pool - € 452,000 (Ref: 9462642)