thinkSPAIN Logo
  • Buy

    Property for Sale

    • See all properties for sale
    • Start your search using our filters
    • Use our map search
    • Draw your search area
    • Where? Use our location filters

    Popular real estate searches

    Apartments/Flats Fincas/Country Houses Townhouses Villas
    Garden Lift Luxury New Build Parking/Garage Pool Sea View Terrace/Balcony
    Alicante Almería Barcelona Benahavís Calpe / Calp Calvià Cartagena Costa Blanca Costa del Sol Dénia Estepona Fuerteventura Girona Ibiza Madrid Mallorca Marbella Mazarrón Mijas Murcia Málaga Orihuela Palma de Mallorca Tenerife Torrevieja Valencia
    Browse all locations and property types
  • Rent

    Property for Rent

    • See all properties for rent
    • Holiday rentals
    • Start your search using our filters
    • Use our map search
    • Draw your search area

    Popular rental searches

    Apartments/Flats Fincas/Country Houses Townhouses Villas
    Garden Lift Mountain Views Parking/Garage Pool Sea View Seafront/Beachfront Terrace/Balcony
    Alicante Almería Almuñécar Altea Barcelona Calvià Cartagena Costa Blanca Costa del Sol Dénia Estepona Gran Canaria Granada Ibiza Madrid Mallorca Marbella Murcia Málaga Orihuela Palma de Mallorca Tenerife Torre-Pacheco Torrevieja Torrox Valencia
    Browse all locations and property types
  • Sell

    I want to advertise on thinkSPAIN

    • I'm an estate agent & want to list my properties
    • I'm an owner and I want to advertise my property directly

    I'm looking for an estate agent in:

    Alicante Almería Barcelona Castellón Cádiz Girona Granada Málaga Tarragona Valencia
    See all estate agents
  • Where?

    Where to buy/rent?

    • Search by lifestyle needs (Location filters)
    • Browse locations by features/services
    • Use our map search
    • Draw your search area

    Popular location searches

    Alicante Almería Barcelona Castellón Cádiz Fuerteventura Girona Granada Ibiza Madrid Mallorca Murcia Málaga Tarragona Tenerife Valencia
  • Map / Draw Your Area

    Use our interactive map to find properties

    • Map search
    • Draw your search area

    Popular map searches

    Alicante Almería Barcelona Benahavís Calpe / Calp Calvià Cartagena Costa Blanca Costa del Sol Dénia Estepona Fuerteventura Girona Ibiza Madrid Mallorca Marbella Mazarrón Mijas Murcia Málaga Orihuela Palma de Mallorca Tenerife Torrevieja Valencia
  • Directory

    What are you looking for?

    • Estate Agents
    • Surveyors
    • Architects / Architectural Design
    • Lawyers / Solicitors
    • Tax Consultants
    • Currency Brokers
    • Mortgage Brokers
    • Property Maintenance / Management

    Recent searches

    Estate Agents in San Javier Lawyers / Solicitors in Huelva Estate Agents in Coín Lawyers / Solicitors in Alicante Estate Agents in Ibiza Lawyers / Solicitors in Costa Blanca Estate Agents in Torre-Pacheco Lawyers / Solicitors in Costa Almería Estate Agents in Benitachell / Benitatxell Estate Agents in Rábade Estate Agents in Costa Tropical Lawyers / Solicitors in Alicante Architects / Architectural Design in Costa Valencia Estate Agents in Alcaucín
  • Help & Info

    How can we help you?

    • Articles & Guides
    • Jobs in Spain
    • Advertiser Login
    • Advertising with thinkSPAIN
    • Advertiser FAQs

    Popular searches

    Buying in Spain Moving to Spain Retiring in Spain Living in Spain Working in Spain News Real Estate Market Top Locations & Properties Finance, Legal & Taxes Finding the right property Areas in Spain Spanish Lifestyle & Culture Property Market Relocation Process Household Transportation Healthcare Alicante Security Languages & Integration
  • Advertiser Login
thinkSPAIN Logo Properties

Villa for sale in Corvera, Murcia city, Murcia

  • € 482,000
  • 3
  • 2
  • 422 m2
Properties

€ 482,000

Ref. 9741543

Call
  • 3 bedroom Villa for sale in Corvera with pool - € 482,000 (Ref: 9741543)
  • 3 bedroom Villa for sale in Corvera with pool - € 482,000 (Ref: 9741543)
  • 3 bedroom Villa for sale in Corvera with pool - € 482,000 (Ref: 9741543)
  • 3 bedroom Villa for sale in Corvera with pool - € 482,000 (Ref: 9741543)
  • 3 bedroom Villa for sale in Corvera with pool - € 482,000 (Ref: 9741543)
  • 3 bedroom Villa for sale in Corvera with pool - € 482,000 (Ref: 9741543)
  • 3 bedroom Villa for sale in Corvera with pool - € 482,000 (Ref: 9741543)
  • 3 bedroom Villa for sale in Corvera with pool - € 482,000 (Ref: 9741543)
  • 3 bedroom Villa for sale in Corvera with pool - € 482,000 (Ref: 9741543)
  • 3 bedroom Villa for sale in Corvera with pool - € 482,000 (Ref: 9741543)
  • 3 bedroom Villa for sale in Corvera with pool - € 482,000 (Ref: 9741543)
  • 3 bedroom Villa for sale in Corvera with pool - € 482,000 (Ref: 9741543)
  • 3 bedroom Villa for sale in Corvera with pool - € 482,000 (Ref: 9741543)
  • 3 bedroom Villa for sale in Corvera with pool - € 482,000 (Ref: 9741543)
  • 3 bedroom Villa for sale in Corvera with pool - € 482,000 (Ref: 9741543)
  • 3 bedroom Villa for sale in Corvera with pool - € 482,000 (Ref: 9741543)
  • 3 bedroom Villa for sale in Corvera with pool - € 482,000 (Ref: 9741543)
1/17

€ 482,000

Villa for sale in Corvera, Murcia city, Murcia

  • 3
  • 2
  • 422 m2

Description

New Build Golf Front Villas with Private Pool in Corvera Hills Murcia

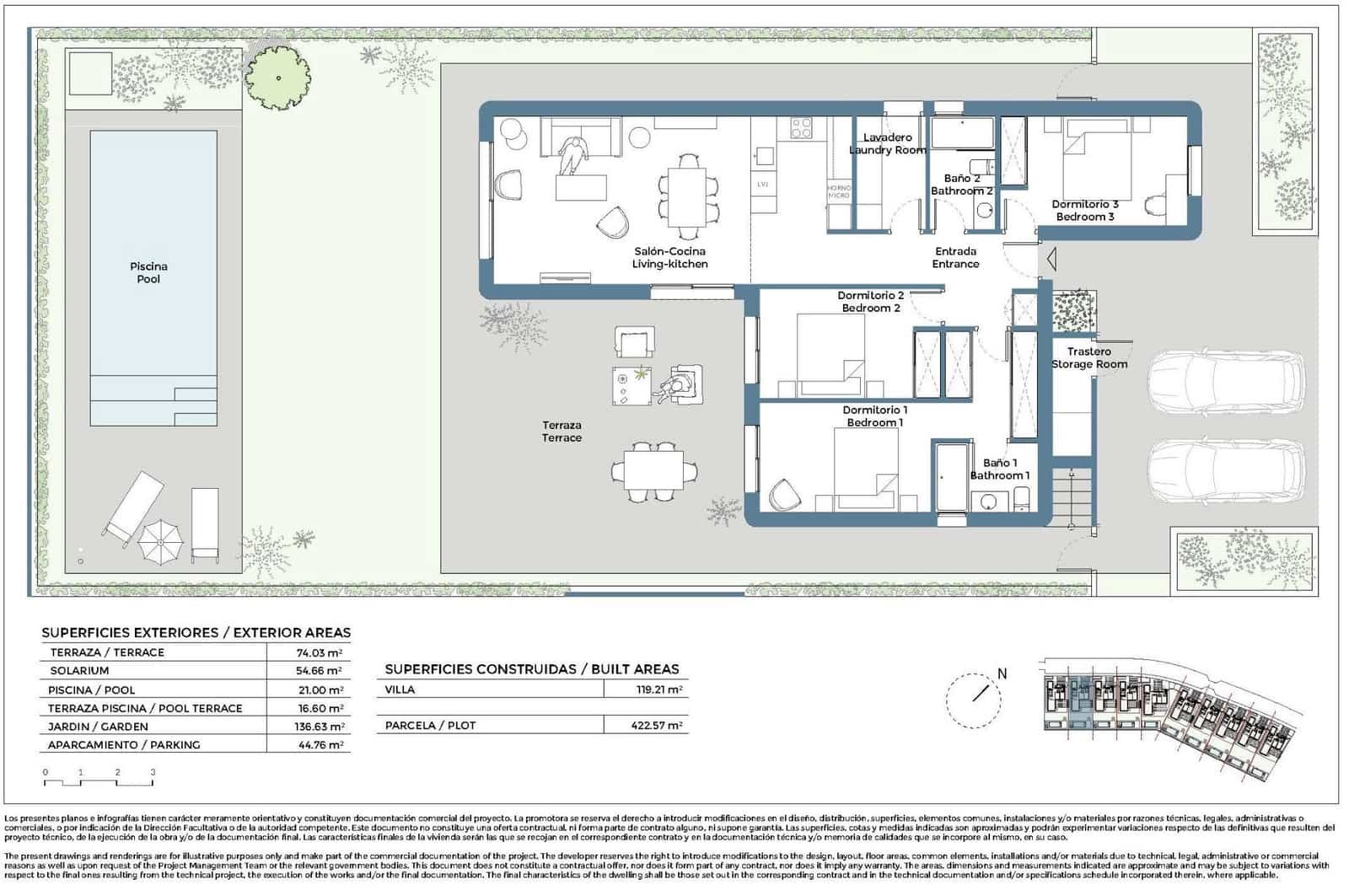
Discover this unique residential development of new build villas located frontline to Corvera Hills Golf in the Region of Murcia. Surrounded by nature and offering open views across the golf course and natural landscape, these homes provide a harmonious environment ideal for enjoying the Mediterranean lifestyle.

This exclusive community consists of 10 villas, including nine properties with three bedrooms and one villa with four bedrooms. All homes feature two bathrooms, including an en suite, and are designed to offer comfort, privacy and a strong connection with the surrounding environment.

Contemporary Single Level Design with Outdoor Living

The villas are designed on one level, combining modern Mediterranean architecture with functional layouts. Built on generous plots starting from 420 m2, each property includes a private garden, rooftop solarium and a private swimming pool.

Large windows allow natural light to fill every room, creating bright and welcoming interiors while seamlessly connecting indoor and outdoor spaces. The design emphasizes simplicity, comfort and integration with the landscape, making these homes perfect for both permanent living and holiday use.

Spacious Interiors Designed for Comfort

Each villa offers well distributed living spaces with open plan living and dining areas that connect directly to outdoor terraces and pool areas. The layout is designed to create a relaxed and practical living environment, ideal for families or those seeking additional space.

The rooftop solarium provides an additional area to enjoy the sun and panoramic views, enhancing the outdoor lifestyle that defines living in southern Spain.

High Quality Features and Energy Efficiency

These homes are built to high standards with a focus on energy efficiency and modern comfort. Features include motorized shutters, reinforced security entrance doors and aerothermal systems for hot water.

Additional specifications include pre installation for ducted air conditioning, bathrooms equipped with vanity units, mirrors and underfloor heating, and photovoltaic panels for improved energy performance. Each villa also includes private parking within the plot and storage space.

Prime Location Near Airport, City and Coast

Corvera Hills Golf offers a strategic location with excellent connectivity. Murcia International Airport is just 10 km away, providing convenient access for international travel. Murcia city center is located 20 km from the development, offering a wide range of services, shopping and cultural attractions.

The beaches of the Costa Calida are approximately 30 km away, perfect for enjoying the sea and coastal lifestyle.

Ideal Investment and Mediterranean Lifestyle Opportunity

These frontline golf villas offer a perfect combination of modern design, natural surroundings and excellent connectivity, making them an ideal choice for both investment and personal use.

1052

Location

Corvera, Murcia city, Murcia Location provided by the Advertiser

Features

  • Villa
  • Bedrooms: 3
  • Bathrooms: 2
  • Plot: 422 m2
  • New Build
  • Pool
  • Private Garden
  • Terrace/Balcony
  • Storeroom
  • Energy Certificate (Consumption): B
  • Energy Certificate (Emissions): B

How can we help you?

Is something wrong with the Ad?

Tell us about the issue so we can fix it

Mortgage calculator

€
€
%

€ 1,530 per month*

+ € 40,260 taxes (€ 38,560) & expenses (€ 1,700)*

*Please note that the results are only a guide and not a mortgage offer or quote.

Contact the Advertiser

How can we help you?

€

This field is required

Check the error(s) above

Ref. 9741543

By submitting this form, you confirm that you agree to our Terms of Use and Privacy Policy.

Share

Related properties

3 bedroom Villa for sale in Corvera, Murcia city with pool - € 499,900 (Ref: 9462810) 2 bedroom Villa for sale in Corvera, Murcia city with pool - € 422,000 (Ref: 8277583) 3 bedroom Villa for sale in Corvera, Murcia city with pool - € 489,000 (Ref: 7613646) 3 bedroom Villa for sale in Corvera, Murcia city with pool - € 518,000 (Ref: 7095164)

Advertisement

  1. Spain
  2. Murcia
  3. Murcia city
  4. Corvera
  5. 3 bedroom Villa for sale in Corvera, Murcia city with pool - € 482,000 (Ref: 9741543)
Call