thinkSPAIN Logo
  • Buy

    Property for Sale

    • See all properties for sale
    • Start your search using our filters
    • Use our map search
    • Draw your search area
    • Where? Use our location filters

    Popular real estate searches

    Apartments/Flats Fincas/Country Houses Townhouses Villas
    Garden Lift Luxury New Build Parking/Garage Pool Sea View Terrace/Balcony
    Alicante Almería Barcelona Benahavís Calpe / Calp Calvià Cartagena Costa Blanca Costa del Sol Dénia Estepona Girona Gran Canaria Ibiza Madrid Mallorca Marbella Mazarrón Mijas Murcia Málaga Orihuela Palma de Mallorca Tenerife Torrevieja Valencia
    Browse all locations and property types
  • Rent

    Property for Rent

    • See all properties for rent
    • Holiday rentals
    • Start your search using our filters
    • Use our map search
    • Draw your search area

    Popular rental searches

    Apartments/Flats Fincas/Country Houses Townhouses Villas
    Garden Lift Mountain Views Parking/Garage Pool Sea View Seafront/Beachfront Terrace/Balcony
    Alicante Almería Almuñécar Altea Barcelona Calvià Cartagena Costa Blanca Costa del Sol Dénia Estepona Gran Canaria Granada Ibiza Javea / Xàbia Madrid Mallorca Marbella Murcia Málaga Palma de Mallorca San Javier Tenerife Torrevieja Torrox Valencia
    Browse all locations and property types
  • Sell

    I want to advertise on thinkSPAIN

    • I'm an estate agent & want to list my properties
    • I'm an owner and I want to advertise my property directly

    I'm looking for an estate agent in:

    Alicante Almería Barcelona Castellón Cádiz Girona Granada Málaga Tarragona Valencia
    See all estate agents
  • Where?

    Where to buy/rent?

    • Search by lifestyle needs (Location filters)
    • Browse locations by features/services
    • Use our map search
    • Draw your search area

    Popular location searches

    Alicante Almería Barcelona Castellón Cádiz Girona Gran Canaria Granada Ibiza Madrid Mallorca Murcia Málaga Tarragona Tenerife Valencia
  • Map / Draw Your Area

    Use our interactive map to find properties

    • Map search
    • Draw your search area

    Popular map searches

    Alicante Almería Barcelona Benahavís Calpe / Calp Calvià Cartagena Costa Blanca Costa del Sol Dénia Estepona Girona Gran Canaria Ibiza Madrid Mallorca Marbella Mazarrón Mijas Murcia Málaga Orihuela Palma de Mallorca Tenerife Torrevieja Valencia
  • Directory

    What are you looking for?

    • Estate Agents
    • Surveyors
    • Architects / Architectural Design
    • Lawyers / Solicitors
    • Tax Consultants
    • Currency Brokers
    • Mortgage Brokers
    • Property Maintenance / Management

    Recent searches

    Estate Agents in Conil de la Frontera Lawyers / Solicitors in Costa de la Luz Lawyers / Solicitors in Alicante Surveyors in Valencia city Lawyers / Solicitors in Alicante Property Maintenance / Management in Calpe / Calp Estate Agents in Alcalá la Real Estate Agents in Elche / Elx Estate Agents in Calvià Lawyers / Solicitors in Valencia Estate Agents in Adeje Estate Agents in Ibiza / Eivissa town Estate Agents in Antigua Estate Agents in Costa Tropical
  • Help & Info

    How can we help you?

    • Articles & Guides
    • Jobs in Spain
    • Advertiser Login
    • Advertising with thinkSPAIN

    Popular searches

    Buying in Spain Moving to Spain Retiring in Spain Living in Spain Working in Spain News Real Estate Market Top Locations & Properties Finance, Legal & Taxes Finding the right property Areas in Spain Spanish Lifestyle & Culture Property Market Household Relocation Process Transportation Healthcare Alicante Languages & Integration Self-employment
  • Advertiser Login
thinkSPAIN Logo Properties

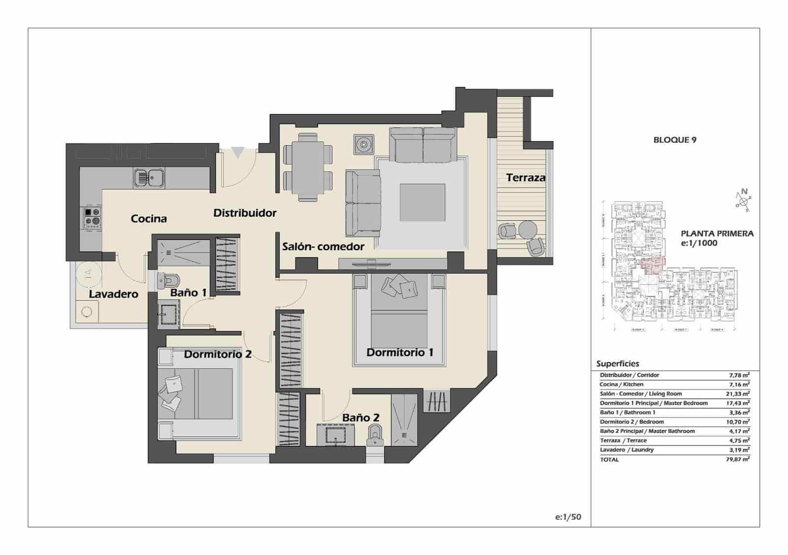
Apartment for sale in Rodeo Alto - Guadaiza - La Campana, Marbella, Málaga

  • € 455,000
  • 86 m2
  • 2
  • 2
Properties

€ 455,000

Ref. 9791794

Call
  • 2 bedroom Apartment for sale in Nueva Andalucia with pool - € 455,000 (Ref: 9791794)
  • 2 bedroom Apartment for sale in Nueva Andalucia with pool - € 455,000 (Ref: 9791794)
  • 2 bedroom Apartment for sale in Nueva Andalucia with pool - € 455,000 (Ref: 9791794)
  • 2 bedroom Apartment for sale in Nueva Andalucia with pool - € 455,000 (Ref: 9791794)
  • 2 bedroom Apartment for sale in Nueva Andalucia with pool - € 455,000 (Ref: 9791794)
  • 2 bedroom Apartment for sale in Nueva Andalucia with pool - € 455,000 (Ref: 9791794)
  • 2 bedroom Apartment for sale in Nueva Andalucia with pool - € 455,000 (Ref: 9791794)
  • 2 bedroom Apartment for sale in Nueva Andalucia with pool - € 455,000 (Ref: 9791794)
  • 2 bedroom Apartment for sale in Nueva Andalucia with pool - € 455,000 (Ref: 9791794)
  • 2 bedroom Apartment for sale in Nueva Andalucia with pool - € 455,000 (Ref: 9791794)
  • 2 bedroom Apartment for sale in Nueva Andalucia with pool - € 455,000 (Ref: 9791794)
  • 2 bedroom Apartment for sale in Nueva Andalucia with pool - € 455,000 (Ref: 9791794)
  • 2 bedroom Apartment for sale in Nueva Andalucia with pool - € 455,000 (Ref: 9791794)
  • 2 bedroom Apartment for sale in Nueva Andalucia with pool - € 455,000 (Ref: 9791794)
  • 2 bedroom Apartment for sale in Nueva Andalucia with pool - € 455,000 (Ref: 9791794)
  • 2 bedroom Apartment for sale in Nueva Andalucia with pool - € 455,000 (Ref: 9791794)
  • 2 bedroom Apartment for sale in Nueva Andalucia with pool - € 455,000 (Ref: 9791794)
  • 2 bedroom Apartment for sale in Nueva Andalucia with pool - € 455,000 (Ref: 9791794)
  • 2 bedroom Apartment for sale in Nueva Andalucia with pool - € 455,000 (Ref: 9791794)
  • 2 bedroom Apartment for sale in Nueva Andalucia with pool - € 455,000 (Ref: 9791794)
  • 2 bedroom Apartment for sale in Nueva Andalucia with pool - € 455,000 (Ref: 9791794)
  • 2 bedroom Apartment for sale in Nueva Andalucia with pool - € 455,000 (Ref: 9791794)
  • 2 bedroom Apartment for sale in Nueva Andalucia with pool - € 455,000 (Ref: 9791794)
  • 2 bedroom Apartment for sale in Nueva Andalucia with pool - € 455,000 (Ref: 9791794)
1/24

€ 455,000

Apartment for sale in Rodeo Alto - Guadaiza - La Campana, Marbella, Málaga

  • 86 m2
  • 2
  • 2

Description

New Build residential of apartments and penthouses located in Nueva Andalucía, just a few minutes from Puerto Banús and San Pedro Alcántara, Marbella.

A magnificent building with a modern style and avant-garde architectural details, such as its peak shape in the corner of the building, with high quality finishes that guarantee the total satisfaction and maximum comfort of the residents.

The building continues the line of the previous development, so it integrates perfectly into the visual of the area with top quality finishes and modern design.

Modern residential has a gymnasium, chill-out area and a spectacular swimming pool on the roof of the building with unbeatable views of the sea and the mountains. The ideal place to enjoy a good swim and relax with the views.

Also excellently connected by road and public transport.

Individual mailboxes located in the entrance hall.

Lifts with capacity for 6 people, with speed 1 m/s and telescopic opening doors.

Electronic video intercom, with wall plate on each staircase, equipped with call button with micro-speaker on the outside and door opening mechanism for the entrance doors controlled from the homes.

Swimming pools on the roof of the building.

Large communal areas on the ground floor and roof.

Excellent location with panoramic views of the coast.

Residential located just 5 minutes from the beach and several golf courses, also enjoying excellent panoramic views of the coast and all the comforts of a luxury home, while maintaining an affordable price.

Your dream home for you and your family is in a recently created neighbourhood in full expansion, surrounded by all the services you may need: schools, institutes, sports areas, parks, shops... all within walking distance.

Less than 5 minutes by car from your home you will find shopping centres, beaches, restaurants, cinemas, leisure and entertainment...

In Nueva Andalucía, Marbella, a strategic area located 5 minutes drive from San Pedro Alcántara and Puerto Banús.

Location

Rodeo Alto - Guadaiza - La Campana, Marbella, Málaga Location provided by the Advertiser

Features

  • Apartment
  • Bedrooms: 2
  • Bathrooms: 2
  • Build Size: 86 m2
  • New Build
  • Communal Pool
  • Sea View
  • Air Conditioning
  • Lift
  • Energy Certificate (Consumption): B

How can we help you?

Is something wrong with the Ad?

Tell us about the issue so we can fix it

Mortgage calculator

€
€
%

€ 1,444 per month*

+ € 33,550 taxes (€ 31,850) & expenses (€ 1,700)*

*Please note that the results are only a guide and not a mortgage offer or quote.

Contact the Advertiser

How can we help you?

€

This field is required

Check the error(s) above

Ref. 9791794

By submitting this form, you confirm that you agree to our Terms of Use and Privacy Policy.

Share

Related properties

3 bedroom Apartment for sale in Rodeo Alto - Guadaiza - La Campana, Marbella with garage - € 369,000 (Ref: 9788752) 3 bedroom Apartment for sale in Rodeo Alto - Guadaiza - La Campana, Marbella with pool - € 413,000 (Ref: 8327305) 3 bedroom Apartment for sale in Rodeo Alto - Guadaiza - La Campana, Marbella with pool - € 440,200 (Ref: 9337520) 3 bedroom Apartment for sale in Rodeo Alto - Guadaiza - La Campana, Marbella with pool - € 440,200 (Ref: 9334381)

Advertisement

  1. Spain
  2. Andalucia
  3. Málaga
  4. Costa del Sol
  5. Marbella
  6. Nueva Andalucia
  7. Rodeo Alto - Guadaiza - La Campana
  8. 2 bedroom Apartment for sale in Rodeo Alto - Guadaiza - La Campana, Marbella with pool - € 455,000 (Ref: 9791794)
Call