thinkSPAIN Logo
  • Buy

    Property for Sale

    • See all properties for sale
    • Start your search using our filters
    • Use our map search
    • Draw your search area
    • Where? Use our location filters

    Popular real estate searches

    Apartments/Flats Fincas/Country Houses Townhouses Villas
    Garden Lift Luxury New Build Parking/Garage Pool Sea View Terrace/Balcony
    Alicante Almería Barcelona Benahavís Calpe / Calp Calvià Cartagena Costa Blanca Costa del Sol Dénia Estepona Girona Gran Canaria Ibiza Madrid Mallorca Marbella Mazarrón Mijas Murcia Málaga Orihuela Palma de Mallorca Tenerife Torrevieja Valencia
    Browse all locations and property types
  • Rent

    Property for Rent

    • See all properties for rent
    • Holiday rentals
    • Start your search using our filters
    • Use our map search
    • Draw your search area

    Popular rental searches

    Apartments/Flats Fincas/Country Houses Townhouses Villas
    Garden Lift Mountain Views Parking/Garage Pool Sea View Seafront/Beachfront Terrace/Balcony
    Alicante Almería Almuñécar Altea Barcelona Calvià Cartagena Costa Blanca Costa del Sol Dénia Estepona Gran Canaria Granada Ibiza Madrid Mallorca Marbella Murcia Málaga Orihuela Palma de Mallorca San Javier Tenerife Torrevieja Torrox Valencia
    Browse all locations and property types
  • Sell

    I want to advertise on thinkSPAIN

    • I'm an estate agent & want to list my properties
    • I'm an owner and I want to advertise my property directly

    I'm looking for an estate agent in:

    Alicante Almería Barcelona Castellón Cádiz Girona Granada Málaga Tarragona Valencia
    See all estate agents
  • Where?

    Where to buy/rent?

    • Search by lifestyle needs (Location filters)
    • Browse locations by features/services
    • Use our map search
    • Draw your search area

    Popular location searches

    Alicante Almería Barcelona Castellón Cádiz Girona Gran Canaria Granada Ibiza Madrid Mallorca Murcia Málaga Tarragona Tenerife Valencia
  • Map / Draw Your Area

    Use our interactive map to find properties

    • Map search
    • Draw your search area

    Popular map searches

    Alicante Almería Barcelona Benahavís Calpe / Calp Calvià Cartagena Costa Blanca Costa del Sol Dénia Estepona Girona Gran Canaria Ibiza Madrid Mallorca Marbella Mazarrón Mijas Murcia Málaga Orihuela Palma de Mallorca Tenerife Torrevieja Valencia
  • Directory

    What are you looking for?

    • Estate Agents
    • Surveyors
    • Architects / Architectural Design
    • Lawyers / Solicitors
    • Tax Consultants
    • Currency Brokers
    • Mortgage Brokers
    • Property Maintenance / Management

    Recent searches

    Tax Consultants in Dénia Mortgage Brokers in Madrid city Estate Agents in Rábade Estate Agents in Orihuela Estate Agents in San Pedro del Pinatar Estate Agents in Alcalá la Real Lawyers / Solicitors in Alicante Lawyers / Solicitors in Gandia Estate Agents in Costa Tropical Estate Agents in Alcaucín Lawyers / Solicitors in Almería Estate Agents in Costa Almería Lawyers / Solicitors in Costa de la Luz Estate Agents in Casares
  • Help & Info

    How can we help you?

    • Articles & Guides
    • Jobs in Spain
    • Advertiser Login
    • Advertising with thinkSPAIN

    Popular searches

    Buying in Spain Moving to Spain Retiring in Spain Living in Spain Working in Spain News Real Estate Market Top Locations & Properties Finance, Legal & Taxes Finding the right property Areas in Spain Spanish Lifestyle & Culture Property Market Household Relocation Process Transportation Healthcare Alicante Languages & Integration Self-employment
  • Advertiser Login
thinkSPAIN Logo Properties

Apartment for sale in Lo Pagan, San Pedro del Pinatar, Murcia

  • € 201,900
  • 70 m2
  • 2
  • 2
Properties

€ 201,900

Ref. 9808378

Call
  • 2 bedroom Apartment for sale in Lo Pagan with pool - € 201,900 (Ref: 9808378)
  • 2 bedroom Apartment for sale in Lo Pagan with pool - € 201,900 (Ref: 9808378)
  • 2 bedroom Apartment for sale in Lo Pagan with pool - € 201,900 (Ref: 9808378)
  • 2 bedroom Apartment for sale in Lo Pagan with pool - € 201,900 (Ref: 9808378)
  • 2 bedroom Apartment for sale in Lo Pagan with pool - € 201,900 (Ref: 9808378)
  • 2 bedroom Apartment for sale in Lo Pagan with pool - € 201,900 (Ref: 9808378)
  • 2 bedroom Apartment for sale in Lo Pagan with pool - € 201,900 (Ref: 9808378)
  • 2 bedroom Apartment for sale in Lo Pagan with pool - € 201,900 (Ref: 9808378)
  • 2 bedroom Apartment for sale in Lo Pagan with pool - € 201,900 (Ref: 9808378)
  • 2 bedroom Apartment for sale in Lo Pagan with pool - € 201,900 (Ref: 9808378)
  • 2 bedroom Apartment for sale in Lo Pagan with pool - € 201,900 (Ref: 9808378)
  • 2 bedroom Apartment for sale in Lo Pagan with pool - € 201,900 (Ref: 9808378)
  • 2 bedroom Apartment for sale in Lo Pagan with pool - € 201,900 (Ref: 9808378)
  • 2 bedroom Apartment for sale in Lo Pagan with pool - € 201,900 (Ref: 9808378)
  • 2 bedroom Apartment for sale in Lo Pagan with pool - € 201,900 (Ref: 9808378)
1/15

€ 201,900

Apartment for sale in Lo Pagan, San Pedro del Pinatar, Murcia

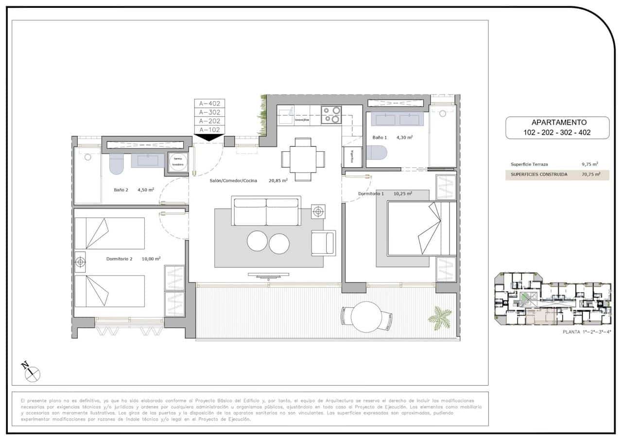
  • 70 m2
  • 2
  • 2

Description

Tourist Apartments Near the Beach in Lo Pagán-San Pedro del Pinatar: Investment Opportunity on the Costa Cálida

Prime Coastal Location in Lo Pagán
Discover this new development of 44 fully furnished tourist apartments located in Lo Pagán, San Pedro del Pinatar, one of the most popular destinations on the Costa Cálida. Just 800 meters from the beach, this residential complex offers the perfect balance between relaxation, coastal lifestyle and investment potential. The area is known for its proximity to both the Mar Menor and the Mediterranean Sea, offering calm waters, marinas and a wide range of water sports. Lo Pagán also features a lively promenade with restaurants, cafés and shops, as well as the famous natural mud baths that attract visitors all year round.

Modern Apartments Designed for Comfort and Flexibility
The development offers a variety of layouts to suit different needs. Buyers can choose between spacious studio apartments with 1 bathroom and terrace, or larger units with 2 bedrooms and 2 bathrooms, including an ensuite, all with private outdoor terraces. Each apartment has been carefully designed to maximize comfort, functionality and natural light.

All properties are delivered fully furnished and equipped with appliances, making them ready for immediate use or rental. The interiors reflect a modern style with quality finishes, ensuring a comfortable and stylish living environment just minutes from the sea.

High Quality Features and Smart Living
These apartments include ducted air conditioning fully installed, aerothermal system for hot water and fully equipped bathrooms with furniture, mirrors and shower screens. In addition, the building and individual homes benefit from smart lock systems, enhancing security and convenience. Some units also include underground or outdoor parking spaces and storage rooms, depending on the property.

Resort Style Amenities for Relaxation and Wellbeing
Residents and guests can enjoy excellent communal facilities, including a rooftop swimming pool with solarium, perfect for relaxing under the Mediterranean sun. The complex also features a gym and an on-site café, creating a comfortable and social environment ideal for both holidays and longer stays.

Excellent Connectivity and Nearby Points of Interest
Lo Pagán Beach 0.8 km
Mar Menor 0.8 km
San Pedro del Pinatar center 2 km
Dos Mares Shopping Center 3 km
Lo Romero Golf 10 km
Murcia International Airport 35 km
Alicante Airport 75 km
Port of San Pedro Marina 2 km

Smart Investment with Rental Management
These tourist apartments offer an excellent investment opportunity, with professional management handling rentals when the property is not in use. This ensures a hassle-free ownership experience and attractive rental returns.

Secure Your Property on the Costa Cálida
Whether you are looking for a holiday home, a rental investment or both, these apartments in Lo Pagán offer location, quality and profitability.

Location

Lo Pagan, San Pedro del Pinatar, Murcia Location provided by the Advertiser

Features

  • Apartment
  • Bedrooms: 2
  • Bathrooms: 2
  • Build Size: 70 m2
  • New Build
  • Pool
  • Terrace/Balcony
  • Energy Efficiency Rating: In Progress

How can we help you?

Is something wrong with the Ad?

Tell us about the issue so we can fix it

Mortgage calculator

€
€
%

€ 641 per month*

+ € 17,852 taxes (€ 16,152) & expenses (€ 1,700)*

*Please note that the results are only a guide and not a mortgage offer or quote.

Contact the Advertiser

How can we help you?

€

This field is required

Check the error(s) above

Ref. 9808378

By submitting this form, you confirm that you agree to our Terms of Use and Privacy Policy.

Share

Related properties

1 bedroom Apartment for sale in Lo Pagan, San Pedro del Pinatar with pool - € 206,900 (Ref: 9733979) 2 bedroom Apartment for sale in Lo Pagan, San Pedro del Pinatar with pool - € 201,900 (Ref: 9802791) 2 bedroom Apartment for sale in Lo Pagan, San Pedro del Pinatar with pool - € 229,900 (Ref: 9626842) 2 bedroom Apartment for sale in Lo Pagan, San Pedro del Pinatar with pool - € 225,000 (Ref: 9778705)

Advertisement

  1. Spain
  2. Murcia
  3. Costa Cálida
  4. San Pedro del Pinatar
  5. Lo Pagan
  6. 2 bedroom Apartment for sale in Lo Pagan, San Pedro del Pinatar with pool - € 201,900 (Ref: 9808378)
Call