thinkSPAIN Logo
  • Köp

    Fastigheter till salu

    • Se alla fastigheter till salu
    • Börja söka med hjälp av våra filter
    • Använd vår kartsökning
    • Rita ditt sökområde

    Populära fastighetssökningar

    Fincas/Hus på landet Hus Lägenheter Villor
    Havsutsikt Hiss Lyxig Nybyggnad Parkering/Garage Simbassäng Terrass/Balkong Trädgård
    Alicante Almería Barcelona Benahavís Calpe / Calp Calvià Cartagena Costa Blanca Costa del Sol Dénia Estepona Girona Gran Canaria Ibiza Madrid Mallorca Marbella Mazarrón Mijas Murcia Málaga Orihuela Palma de Mallorca Teneriffa Torrevieja Valencia
    Bläddra bland alla platser och fastighetstyper
  • Hyra

    Fastigheter att hyra

    • Se alla fastigheter att hyra
    • Semesteruthyrning
    • Börja söka med hjälp av våra filter
    • Använd vår kartsökning
    • Rita ditt sökområde

    Populära hyressökningar

    Fincas/Hus på landet Hus Lägenheter Villor
    Havet/Stranden Havsutsikt Hiss Parkering/Garage Simbassäng Terrass/Balkong Trädgård Utsikt över bergen
    Alicante Almería Almuñécar Altea Barcelona Calvià Cartagena Costa Blanca Costa del Sol Dénia Estepona Gran Canaria Granada Ibiza Javea / Xàbia Madrid Mallorca Marbella Murcia Málaga Palma de Mallorca San Javier Teneriffa Torrevieja Torrox Valencia
    Bläddra bland alla platser och fastighetstyper
  • Jag vill annonsera på thinkSPAIN

    Jag letar efter en fastighetsmäklare i:

    Alicante Almería Barcelona Castellón Cádiz Girona Granada Málaga Tarragona Valencia
    Se alla fastighetsmäklare
  • Karta / Rita ditt område

    Använd vår interaktiva karta för att hitta fastigheter

    • Kartsökning
    • Rita ditt sökområde

    Populära kartsökningar

    Alicante Almería Barcelona Benahavís Calpe / Calp Calvià Cartagena Costa Blanca Costa del Sol Dénia Estepona Girona Gran Canaria Ibiza Madrid Mallorca Marbella Mazarrón Mijas Murcia Málaga Orihuela Palma de Mallorca Teneriffa Torrevieja Valencia
  • Katalog

    Vad söker du?

    • Fastighetsmäklare
    • Besiktningsmän
    • Arkitekter / Arkitektdesign
    • Advokat / juridiskt ombud
    • Skatterådgivare
    • Valutamäklare
    • Hypoteksmäklare
    • Fastighetsunderhåll / -skötsel

    Senaste sökningar

    Fastighetsunderhåll / -skötsel i Calpe / Calp Fastighetsmäklare i Costa del Sol Fastighetsmäklare i Madrid stad Fastighetsmäklare i Teneriffa Fastighetsmäklare i San Javier Advokat / juridiskt ombud i Costa Cálida Advokat / juridiskt ombud i Costa de la Luz Fastighetsmäklare i Sayalonga Fastighetsmäklare i Costa Brava Advokat / juridiskt ombud i Almería Fastighetsmäklare i Ibiza stad Advokat / juridiskt ombud i Alicante Advokat / juridiskt ombud i Alicante Fastighetsmäklare i Teulada-Moraira
  • Hjälp och info

    Hur kan vi hjälpa dig?

    • Artiklar och guider
    • Annonsörsinloggning

    Populära sökningar

    Köpa fastighet i Spanien Flytta till Spanien Livet som pensionär i Spanien Leva i Spanien Arbeta i Spanien Topplägen & Fastigheter Ekonomi, juridik och skatteregler Hitta rätt fastighet Spansk kultur och livsstil Regioner i Spanien Flyttprocessen Transport Hälso- och sjukvård Hushåll Fastighetsmarknaden Alicante Språk och integration Säkerhet Egenföretagande Hitta jobb
  • Annonsörsinloggning
thinkSPAIN Logo Fastigheter

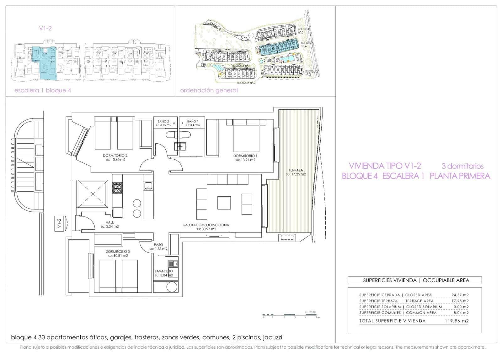
Lägenhet till salu i Playa Flamenca, Orihuela, Alicante

  • 469 000 €
  • 94 m2
  • 3
  • 2
Fastigheter

469 000 €

Ref. 8458535

Samtal
  • 3 sovrum Lägenhet till salu i Orihuela Costa med pool garage - 469 000 € (Ref: 8458535)
  • 3 sovrum Lägenhet till salu i Orihuela Costa med pool garage - 469 000 € (Ref: 8458535)
  • 3 sovrum Lägenhet till salu i Orihuela Costa med pool garage - 469 000 € (Ref: 8458535)
  • 3 sovrum Lägenhet till salu i Orihuela Costa med pool garage - 469 000 € (Ref: 8458535)
  • 3 sovrum Lägenhet till salu i Orihuela Costa med pool garage - 469 000 € (Ref: 8458535)
  • 3 sovrum Lägenhet till salu i Orihuela Costa med pool garage - 469 000 € (Ref: 8458535)
  • 3 sovrum Lägenhet till salu i Orihuela Costa med pool garage - 469 000 € (Ref: 8458535)
  • 3 sovrum Lägenhet till salu i Orihuela Costa med pool garage - 469 000 € (Ref: 8458535)
  • 3 sovrum Lägenhet till salu i Orihuela Costa med pool garage - 469 000 € (Ref: 8458535)
  • 3 sovrum Lägenhet till salu i Orihuela Costa med pool garage - 469 000 € (Ref: 8458535)
  • 3 sovrum Lägenhet till salu i Orihuela Costa med pool garage - 469 000 € (Ref: 8458535)
  • 3 sovrum Lägenhet till salu i Orihuela Costa med pool garage - 469 000 € (Ref: 8458535)
  • 3 sovrum Lägenhet till salu i Orihuela Costa med pool garage - 469 000 € (Ref: 8458535)
  • 3 sovrum Lägenhet till salu i Orihuela Costa med pool garage - 469 000 € (Ref: 8458535)
  • 3 sovrum Lägenhet till salu i Orihuela Costa med pool garage - 469 000 € (Ref: 8458535)
  • 3 sovrum Lägenhet till salu i Orihuela Costa med pool garage - 469 000 € (Ref: 8458535)
  • 3 sovrum Lägenhet till salu i Orihuela Costa med pool garage - 469 000 € (Ref: 8458535)
  • 3 sovrum Lägenhet till salu i Orihuela Costa med pool garage - 469 000 € (Ref: 8458535)
  • 3 sovrum Lägenhet till salu i Orihuela Costa med pool garage - 469 000 € (Ref: 8458535)
  • 3 sovrum Lägenhet till salu i Orihuela Costa med pool garage - 469 000 € (Ref: 8458535)
  • 3 sovrum Lägenhet till salu i Orihuela Costa med pool garage - 469 000 € (Ref: 8458535)
  • 3 sovrum Lägenhet till salu i Orihuela Costa med pool garage - 469 000 € (Ref: 8458535)
  • 3 sovrum Lägenhet till salu i Orihuela Costa med pool garage - 469 000 € (Ref: 8458535)
  • 3 sovrum Lägenhet till salu i Orihuela Costa med pool garage - 469 000 € (Ref: 8458535)
  • 3 sovrum Lägenhet till salu i Orihuela Costa med pool garage - 469 000 € (Ref: 8458535)
  • 3 sovrum Lägenhet till salu i Orihuela Costa med pool garage - 469 000 € (Ref: 8458535)
  • 3 sovrum Lägenhet till salu i Orihuela Costa med pool garage - 469 000 € (Ref: 8458535)
  • 3 sovrum Lägenhet till salu i Orihuela Costa med pool garage - 469 000 € (Ref: 8458535)
  • 3 sovrum Lägenhet till salu i Orihuela Costa med pool garage - 469 000 € (Ref: 8458535)
  • 3 sovrum Lägenhet till salu i Orihuela Costa med pool garage - 469 000 € (Ref: 8458535)
  • 3 sovrum Lägenhet till salu i Orihuela Costa med pool garage - 469 000 € (Ref: 8458535)
  • 3 sovrum Lägenhet till salu i Orihuela Costa med pool garage - 469 000 € (Ref: 8458535)
  • 3 sovrum Lägenhet till salu i Orihuela Costa med pool garage - 469 000 € (Ref: 8458535)
  • 3 sovrum Lägenhet till salu i Orihuela Costa med pool garage - 469 000 € (Ref: 8458535)
  • 3 sovrum Lägenhet till salu i Orihuela Costa med pool garage - 469 000 € (Ref: 8458535)
1/35

469 000 €

Lägenhet till salu i Playa Flamenca, Orihuela, Alicante

  • 94 m2
  • 3
  • 2

Beskrivning

Nybyggande bostad på Playa Flamenca!

Från en väletablerad utvecklare är vi stolta över att kunna erbjuda detta just släppta nya bostadsområde bara 500 m från havet vid populära Playa Flamenca (Orihuela Costa).

Bostad med fina gemensamma pooler, jacuzzis och trevliga gemensamma trädgårdar. Alla tjänster som stormarknader, barer och restauranger etc ligger inom gångavstånd på en mycket central plats vid Orihuela Costa.

Stort utbud av typer att välja mellan: lägenheter med 2, 3 eller 4 sovrum. Låga våningar med privata trädgårdar eller översta våningar med privata solarier. Alla hus kommer med parkeringsplats och förråd ingår i priset.

Köpcentret Zenia Boulevard 1 km bort och flera golfbanor som Villamartin, Campoamor inom 5 km från detta bostadsområde kommer att vara en idealisk plats för din semester eller ditt permanenta boende.

Cadastral number: 438

Plats

Playa Flamenca, Orihuela, Alicante Plats tillhandahålls av annonsören

Funktioner

  • Lägenhet
  • Sovrum: 3
  • Badrum: 2
  • Byggtomt: 0 m2
  • Nybyggnad
  • Gemensam pool
  • Parkering/Garage
  • Privat trädgård
  • Hiss
  • Energieffektivitetsgradering: Pågår

Hur kan vi hjälpa dig?

Hittade du ett fel?

Berätta vad du har upptäckt för att korrigera det

Amorteringskalkylator

€
€
%

1 489 € per månad*

+ 48 600 € skatter (46 900 €) & utgifter (1 700 €)*

*Observera att resultaten endast är en guide och inte ett inteckning eller offert.

Kontakta annonsören

Hur kan vi hjälpa dig?

€

This field is required

Kontrollera felen ovan

Ref. 8458535

Genom att skicka in detta formulär, bekräftar du att du samtycker till våra Användarvillkor och vår sekretesspolicy.

Dela

Relaterade fastigheter

4 sovrum Lägenhet till salu i Playa Flamenca, Orihuela med pool - 505 000 € (Ref: 7978172) 3 sovrum Lägenhet till salu i Playa Flamenca, Orihuela med pool garage - 522 000 € (Ref: 9308708) 3 sovrum Lägenhet till salu i Playa Flamenca, Orihuela - 522 000 € (Ref: 9582911) 3 sovrum Lägenhet till salu i Playa Flamenca, Orihuela - 499 000 € (Ref: 9609978)

Annons

  1. Spanien
  2. Valencia
  3. Alicante
  4. Costa Blanca
  5. Orihuela
  6. Orihuela Costa
  7. Playa Flamenca
  8. 3 sovrum Lägenhet till salu i Playa Flamenca, Orihuela med pool garage - 469 000 € (Ref: 8458535)
Samtal