thinkSPAIN Logo
  • Köp

    Fastigheter till salu

    • Se alla fastigheter till salu
    • Börja söka med hjälp av våra filter
    • Använd vår kartsökning
    • Rita ditt sökområde

    Populära fastighetssökningar

    Fincas/Hus på landet Hus Lägenheter Villor
    Havsutsikt Hiss Lyxig Nybyggnad Parkering/Garage Simbassäng Terrass/Balkong Trädgård
    Alicante Almería Barcelona Benahavís Calvià Cartagena Costa Blanca Costa del Sol Dénia Estepona Girona Gran Canaria Ibiza Javea / Xàbia Madrid Mallorca Marbella Mazarrón Mijas Murcia Málaga Orihuela Palma de Mallorca Teneriffa Torrevieja Valencia
    Bläddra bland alla platser och fastighetstyper
  • Hyra

    Fastigheter att hyra

    • Se alla fastigheter att hyra
    • Semesteruthyrning
    • Börja söka med hjälp av våra filter
    • Använd vår kartsökning
    • Rita ditt sökområde

    Populära hyressökningar

    Fincas/Hus på landet Hus Lägenheter Villor
    Havsutsikt Hiss Nybyggnad Parkering/Garage Simbassäng Terrass/Balkong Trädgård Utsikt över bergen
    Alicante Almería Almuñécar Altea Barcelona Calvià Cartagena Costa Blanca Costa del Sol Dénia Estepona Gran Canaria Granada Ibiza Madrid Mallorca Marbella Murcia Málaga Orihuela Palma de Mallorca San Javier Teneriffa Torrevieja Torrox Valencia
    Bläddra bland alla platser och fastighetstyper
  • Jag vill annonsera på thinkSPAIN

    Jag letar efter en fastighetsmäklare i:

    Alicante Almería Barcelona Castellón Cádiz Girona Granada Málaga Tarragona Valencia
    Se alla fastighetsmäklare
  • Karta / Rita ditt område

    Använd vår interaktiva karta för att hitta fastigheter

    • Kartsökning
    • Rita ditt sökområde

    Populära kartsökningar

    Alicante Almería Barcelona Benahavís Calvià Cartagena Costa Blanca Costa del Sol Dénia Estepona Girona Gran Canaria Ibiza Javea / Xàbia Madrid Mallorca Marbella Mazarrón Mijas Murcia Málaga Orihuela Palma de Mallorca Teneriffa Torrevieja Valencia
  • Katalog

    Vad söker du?

    • Fastighetsmäklare
    • Besiktningsmän
    • Arkitekter / Arkitektdesign
    • Advokat / juridiskt ombud
    • Skatterådgivare
    • Valutamäklare
    • Hypoteksmäklare
    • Fastighetsunderhåll / -skötsel

    Senaste sökningar

    Fastighetsmäklare i Sayalonga Fastighetsmäklare i Antigua Fastighetsmäklare i Cómpeta Fastighetsmäklare i Alcalá la Real Advokat / juridiskt ombud i Huelva Advokat / juridiskt ombud i Aguilas Advokat / juridiskt ombud i Costa Cálida Fastighetsmäklare i Gran Canaria Fastighetsmäklare i Girona Fastighetsmäklare i Guardamar del Segura Advokat / juridiskt ombud i Valencia Advokat / juridiskt ombud i Orihuela Advokat / juridiskt ombud i Alicante Fastighetsmäklare i Torrevieja
  • Hjälp och info

    Hur kan vi hjälpa dig?

    • Artiklar och guider
    • Annonsörsinloggning

    Populära sökningar

    Köpa fastighet i Spanien Flytta till Spanien Livet som pensionär i Spanien Leva i Spanien Arbeta i Spanien Topplägen & Fastigheter Ekonomi, juridik och skatteregler Hitta rätt fastighet Spansk kultur och livsstil Regioner i Spanien Flyttprocessen Transport Hälso- och sjukvård Hushåll Fastighetsmarknaden Alicante Språk och integration Säkerhet Egenföretagande Hitta jobb
  • Annonsörsinloggning
thinkSPAIN Logo Fastigheter

Lägenhet till salu i Guardamar del Segura, Alicante

  • 170 000 €
  • 64 m2
  • 1
  • 1
  • 64 m 2
Fastigheter

170 000 €

Ref. 9453020

  • 1 sovrum Lägenhet till salu i Guardamar del Segura med pool - 170 000 € (Ref: 9453020)
  • 1 sovrum Lägenhet till salu i Guardamar del Segura med pool - 170 000 € (Ref: 9453020)
  • 1 sovrum Lägenhet till salu i Guardamar del Segura med pool - 170 000 € (Ref: 9453020)
  • 1 sovrum Lägenhet till salu i Guardamar del Segura med pool - 170 000 € (Ref: 9453020)
  • 1 sovrum Lägenhet till salu i Guardamar del Segura med pool - 170 000 € (Ref: 9453020)
  • 1 sovrum Lägenhet till salu i Guardamar del Segura med pool - 170 000 € (Ref: 9453020)
  • 1 sovrum Lägenhet till salu i Guardamar del Segura med pool - 170 000 € (Ref: 9453020)
  • 1 sovrum Lägenhet till salu i Guardamar del Segura med pool - 170 000 € (Ref: 9453020)
  • 1 sovrum Lägenhet till salu i Guardamar del Segura med pool - 170 000 € (Ref: 9453020)
  • 1 sovrum Lägenhet till salu i Guardamar del Segura med pool - 170 000 € (Ref: 9453020)
  • 1 sovrum Lägenhet till salu i Guardamar del Segura med pool - 170 000 € (Ref: 9453020)
  • 1 sovrum Lägenhet till salu i Guardamar del Segura med pool - 170 000 € (Ref: 9453020)
  • 1 sovrum Lägenhet till salu i Guardamar del Segura med pool - 170 000 € (Ref: 9453020)
  • 1 sovrum Lägenhet till salu i Guardamar del Segura med pool - 170 000 € (Ref: 9453020)
  • 1 sovrum Lägenhet till salu i Guardamar del Segura med pool - 170 000 € (Ref: 9453020)
  • 1 sovrum Lägenhet till salu i Guardamar del Segura med pool - 170 000 € (Ref: 9453020)
  • 1 sovrum Lägenhet till salu i Guardamar del Segura med pool - 170 000 € (Ref: 9453020)
  • 1 sovrum Lägenhet till salu i Guardamar del Segura med pool - 170 000 € (Ref: 9453020)
  • 1 sovrum Lägenhet till salu i Guardamar del Segura med pool - 170 000 € (Ref: 9453020)
  • 1 sovrum Lägenhet till salu i Guardamar del Segura med pool - 170 000 € (Ref: 9453020)
  • 1 sovrum Lägenhet till salu i Guardamar del Segura med pool - 170 000 € (Ref: 9453020)
  • 1 sovrum Lägenhet till salu i Guardamar del Segura med pool - 170 000 € (Ref: 9453020)
  • 1 sovrum Lägenhet till salu i Guardamar del Segura med pool - 170 000 € (Ref: 9453020)
  • 1 sovrum Lägenhet till salu i Guardamar del Segura med pool - 170 000 € (Ref: 9453020)
  • 1 sovrum Lägenhet till salu i Guardamar del Segura med pool - 170 000 € (Ref: 9453020)
1/25

170 000 €

Lägenhet till salu i Guardamar del Segura, Alicante

  • 64 m2
  • 1
  • 1
  • 64 m 2

Beskrivning

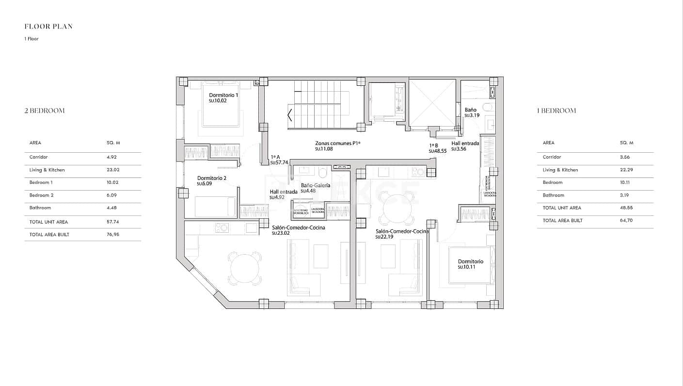
Stilfulla lägenheter med 1 och 2 sovrum nära stranden i Guardamar
Guardamar del Segura är en livlig kuststad på Costa Blanca, känd för sina långa sandstränder, naturliga sanddyner och charmiga medelhavsatmosfär. Området erbjuder en perfekt balans mellan avkoppling och bekvämlighet, med ett livligt centrum, restauranger, butiker och året-runt-service, idealiskt för både permanent boende och semester.
Belägna nära alla nödvändiga bekvämligheter ligger dessa endast 0,3 km från stormarknader och lokala restauranger, 0,6 km från Guardamarstranden, 1,2 km från stadskärnan, 6 km från La Marquesa Golf, 10 km från Torrevieja och 31 km från Alicantes internationella flygplats. De erbjuder även enkel tillgång till naturparker, shoppingcenter och de närliggande städerna Ciudad Quesada och Rojales.
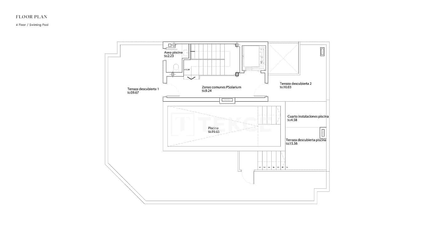
Bostadshuset har en modern design med en gemensam takterrass som inkluderar en pool och solarium, och erbjuder panoramautsikt över staden och Medelhavet. En hiss förbinder alla våningar för komfort och tillgänglighet, och området erbjuder en fridfull, välskött miljö som är perfekt för både avkoppling och investering.
Varje lägenhet uppvisar förfinat italienskt hantverk, med inbyggda kök tillverkade i Italien, bänkskivor i natursten och integrerade vitvaror. Lägenheterna är utrustade med inbyggda garderober, badrumsmöbler, tvättmaskin/torktumlare, vattensystem för uppvärmning, luftkonditionering och digitala lås med fjärrkontroll. Interiörerna är utformade för komfort, funktionalitet och elegans, och kombinerar stil med avancerad teknik för modernt boende.
ALC-01143

Plats

Guardamar del Segura, Alicante Platsen har inte angetts.

Funktioner

  • Lägenhet
  • Sovrum: 1
  • Badrum: 1
  • Byggtomt: 64 m2
  • Byggtomt: 64 m2
  • Våningar: 1
  • Byggt år: 2027
  • Nybyggnad
  • Gemensam pool
  • Luftkonditionering
  • Hiss
  • Terrass/Balkong
  • Förrådsrum
  • Energicertifikat (konsumtion): A

Hur kan vi hjälpa dig?

Hittade du ett fel?

Berätta vad du har upptäckt för att korrigera det

Amorteringskalkylator

€
€
%

539 € per månad*

+ 18 700 € skatter (17 000 €) & utgifter (1 700 €)*

*Observera att resultaten endast är en guide och inte ett inteckning eller offert.

Kontakta annonsören

Hur kan vi hjälpa dig?

€

This field is required

Kontrollera felen ovan
Om annonsören har angett ett kontakttelefonnummer, ser du det efter att du fyllt i och skickat detta frågeformulär.

Ref. 9453020

Genom att skicka in detta formulär, bekräftar du att du samtycker till våra Användarvillkor och vår sekretesspolicy.

Dela

Relaterade fastigheter

3 sovrum Lägenhet till salu i Guardamar del Segura - 168 000 € (Ref: 8989861) 4 sovrum Lägenhet till salu i Guardamar del Segura - 165 000 € (Ref: 9533723) 2 sovrum Lägenhet till salu i Guardamar del Segura - 155 000 € (Ref: 9561786) 3 sovrum Lägenhet till salu i Guardamar del Segura med garage - 177 000 € (Ref: 8551398)

Annons

  1. Spanien
  2. Valencia
  3. Alicante
  4. Costa Blanca
  5. Guardamar del Segura
  6. 1 sovrum Lägenhet till salu i Guardamar del Segura med pool - 170 000 € (Ref: 9453020)