thinkSPAIN Logo
  • Köp

    Fastigheter till salu

    • Se alla fastigheter till salu
    • Börja söka med hjälp av våra filter
    • Använd vår kartsökning
    • Rita ditt sökområde

    Populära fastighetssökningar

    Fincas/Hus på landet Hus Lägenheter Villor
    Havsutsikt Hiss Lyxig Nybyggnad Parkering/Garage Simbassäng Terrass/Balkong Trädgård
    Alicante Almería Barcelona Benahavís Calvià Cartagena Costa Blanca Costa del Sol Dénia Estepona Girona Gran Canaria Ibiza Javea / Xàbia Madrid Mallorca Marbella Mazarrón Mijas Murcia Málaga Orihuela Palma de Mallorca Teneriffa Torrevieja Valencia
    Bläddra bland alla platser och fastighetstyper
  • Hyra

    Fastigheter att hyra

    • Se alla fastigheter att hyra
    • Semesteruthyrning
    • Börja söka med hjälp av våra filter
    • Använd vår kartsökning
    • Rita ditt sökområde

    Populära hyressökningar

    Fincas/Hus på landet Hus Lägenheter Villor
    Havsutsikt Hiss Nybyggnad Parkering/Garage Simbassäng Terrass/Balkong Trädgård Utsikt över bergen
    Alicante Almería Almuñécar Altea Barcelona Calvià Cartagena Costa Blanca Costa del Sol Dénia Estepona Gran Canaria Granada Ibiza Madrid Mallorca Marbella Murcia Málaga Orihuela Palma de Mallorca Teneriffa Torre-Pacheco Torrevieja Torrox Valencia
    Bläddra bland alla platser och fastighetstyper
  • Jag vill annonsera på thinkSPAIN

    Jag letar efter en fastighetsmäklare i:

    Alicante Almería Barcelona Castellón Cádiz Girona Granada Málaga Tarragona Valencia
    Se alla fastighetsmäklare
  • Karta / Rita ditt område

    Använd vår interaktiva karta för att hitta fastigheter

    • Kartsökning
    • Rita ditt sökområde

    Populära kartsökningar

    Alicante Almería Barcelona Benahavís Calvià Cartagena Costa Blanca Costa del Sol Dénia Estepona Girona Gran Canaria Ibiza Javea / Xàbia Madrid Mallorca Marbella Mazarrón Mijas Murcia Málaga Orihuela Palma de Mallorca Teneriffa Torrevieja Valencia
  • Hur kan vi hjälpa dig?

    • Artiklar och guider
    • Företags- och tjänstekatalog
    • Annonsörsinloggning

    Populära sökningar

    Advokat / juridiskt ombud Hypoteksmäklare Fastighetsmäklare Fastighetsunderhåll / -skötsel Valutamäklare Besiktningsmän Arkitekter / Arkitektdesign Skatterådgivare
    Ekonomi, juridik och skatteregler Köpa fastighet i Spanien Leva i Spanien Flytta till Spanien Hitta rätt fastighet Spansk kultur och livsstil Regioner i Spanien Arbeta i Spanien Livet som pensionär i Spanien Topplägen & Fastigheter Flyttprocessen Transport
thinkSPAIN Logo Fastigheter

Radhus till salu i Churriana de la Vega, Granada

  • 385 000 €
  • 232 m2
  • 4
  • 3

385 000 € Ref. 9619578

Fastigheter
Ref. 9619578
Samtal
  • 4 sovrum Radhus till salu i Churriana de la Vega med garage - 385 000 € (Ref: 9619578)
  • 4 sovrum Radhus till salu i Churriana de la Vega med garage - 385 000 € (Ref: 9619578)
  • 4 sovrum Radhus till salu i Churriana de la Vega med garage - 385 000 € (Ref: 9619578)
  • 4 sovrum Radhus till salu i Churriana de la Vega med garage - 385 000 € (Ref: 9619578)
  • 4 sovrum Radhus till salu i Churriana de la Vega med garage - 385 000 € (Ref: 9619578)
  • 4 sovrum Radhus till salu i Churriana de la Vega med garage - 385 000 € (Ref: 9619578)
  • 4 sovrum Radhus till salu i Churriana de la Vega med garage - 385 000 € (Ref: 9619578)
  • 4 sovrum Radhus till salu i Churriana de la Vega med garage - 385 000 € (Ref: 9619578)
  • 4 sovrum Radhus till salu i Churriana de la Vega med garage - 385 000 € (Ref: 9619578)
  • 4 sovrum Radhus till salu i Churriana de la Vega med garage - 385 000 € (Ref: 9619578)
  • 4 sovrum Radhus till salu i Churriana de la Vega med garage - 385 000 € (Ref: 9619578)
  • 4 sovrum Radhus till salu i Churriana de la Vega med garage - 385 000 € (Ref: 9619578)
  • 4 sovrum Radhus till salu i Churriana de la Vega med garage - 385 000 € (Ref: 9619578)
  • 4 sovrum Radhus till salu i Churriana de la Vega med garage - 385 000 € (Ref: 9619578)
  • 4 sovrum Radhus till salu i Churriana de la Vega med garage - 385 000 € (Ref: 9619578)
  • 4 sovrum Radhus till salu i Churriana de la Vega med garage - 385 000 € (Ref: 9619578)
  • 4 sovrum Radhus till salu i Churriana de la Vega med garage - 385 000 € (Ref: 9619578)
  • 4 sovrum Radhus till salu i Churriana de la Vega med garage - 385 000 € (Ref: 9619578)
  • 4 sovrum Radhus till salu i Churriana de la Vega med garage - 385 000 € (Ref: 9619578)
  • 4 sovrum Radhus till salu i Churriana de la Vega med garage - 385 000 € (Ref: 9619578)
  • 4 sovrum Radhus till salu i Churriana de la Vega med garage - 385 000 € (Ref: 9619578)
  • 4 sovrum Radhus till salu i Churriana de la Vega med garage - 385 000 € (Ref: 9619578)
  • 4 sovrum Radhus till salu i Churriana de la Vega med garage - 385 000 € (Ref: 9619578)
  • 4 sovrum Radhus till salu i Churriana de la Vega med garage - 385 000 € (Ref: 9619578)
  • 4 sovrum Radhus till salu i Churriana de la Vega med garage - 385 000 € (Ref: 9619578)
  • 4 sovrum Radhus till salu i Churriana de la Vega med garage - 385 000 € (Ref: 9619578)
  • 4 sovrum Radhus till salu i Churriana de la Vega med garage - 385 000 € (Ref: 9619578)
  • 4 sovrum Radhus till salu i Churriana de la Vega med garage - 385 000 € (Ref: 9619578)
  • 4 sovrum Radhus till salu i Churriana de la Vega med garage - 385 000 € (Ref: 9619578)
  • 4 sovrum Radhus till salu i Churriana de la Vega med garage - 385 000 € (Ref: 9619578)
  • 4 sovrum Radhus till salu i Churriana de la Vega med garage - 385 000 € (Ref: 9619578)
  • 4 sovrum Radhus till salu i Churriana de la Vega med garage - 385 000 € (Ref: 9619578)
  • 4 sovrum Radhus till salu i Churriana de la Vega med garage - 385 000 € (Ref: 9619578)
  • 4 sovrum Radhus till salu i Churriana de la Vega med garage - 385 000 € (Ref: 9619578)
  • 4 sovrum Radhus till salu i Churriana de la Vega med garage - 385 000 € (Ref: 9619578)
  • 4 sovrum Radhus till salu i Churriana de la Vega med garage - 385 000 € (Ref: 9619578)
  • 4 sovrum Radhus till salu i Churriana de la Vega med garage - 385 000 € (Ref: 9619578)
  • 4 sovrum Radhus till salu i Churriana de la Vega med garage - 385 000 € (Ref: 9619578)
  • 4 sovrum Radhus till salu i Churriana de la Vega med garage - 385 000 € (Ref: 9619578)
  • 4 sovrum Radhus till salu i Churriana de la Vega med garage - 385 000 € (Ref: 9619578)
  • 4 sovrum Radhus till salu i Churriana de la Vega med garage - 385 000 € (Ref: 9619578)
  • 4 sovrum Radhus till salu i Churriana de la Vega med garage - 385 000 € (Ref: 9619578)
  • 4 sovrum Radhus till salu i Churriana de la Vega med garage - 385 000 € (Ref: 9619578)
  • 4 sovrum Radhus till salu i Churriana de la Vega med garage - 385 000 € (Ref: 9619578)
  • 4 sovrum Radhus till salu i Churriana de la Vega med garage - 385 000 € (Ref: 9619578)
  • 4 sovrum Radhus till salu i Churriana de la Vega med garage - 385 000 € (Ref: 9619578)
  • 4 sovrum Radhus till salu i Churriana de la Vega med garage - 385 000 € (Ref: 9619578)
  • 4 sovrum Radhus till salu i Churriana de la Vega med garage - 385 000 € (Ref: 9619578)
  • 4 sovrum Radhus till salu i Churriana de la Vega med garage - 385 000 € (Ref: 9619578)
  • 4 sovrum Radhus till salu i Churriana de la Vega med garage - 385 000 € (Ref: 9619578)
1/50

385 000 €

Radhus till salu i Churriana de la Vega, Granada

  • 232 m2
  • 4
  • 3

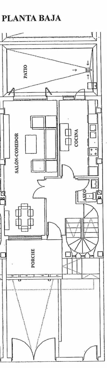
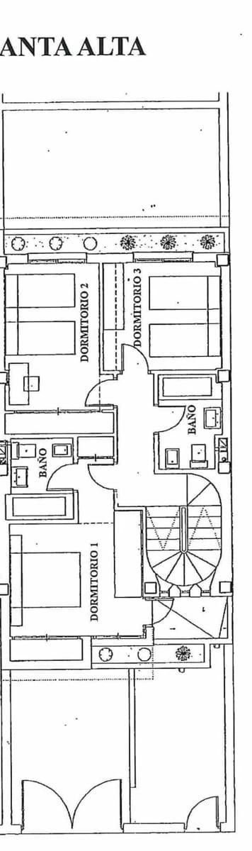
Beskrivning

Det designade lyxvillan som alla söker vid Vial de Churriana och som nästan aldrig säljs.

I den mest eftertraktade delen av Churriana de la Vega, bredvid det efterfrågade Vial och med direkt anslutning till tunnelbanan och centrum av Granada, ligger denna bostad som förenar det som mycket få kan erbjuda: toppläge + premiumdesign + verklig rymd.

Här har du allt: tunnelbanan inom några minuter, mataffärer, skolor, butiker, serviceinrättningar… och ett av områdena med störst efterfrågan och värdeökning i Granadas storstadsområde. Att köpa här är inte bara att leva bra. Det är att investera intelligent.

Vid husets entré möts vi av en vacker och charmig veranda så snart man kommer, perfekt för dina avkopplingsstunder.

Från första steget in i huset förmedlar det stabilitet, design och kvalitet. Vardagsrummet är mycket rymligt och är uppdelat i två separata miljöer, perfekt för att skapa en vardagsrumsområde och ett separat matsalsutrymme, med direkt utgång till en vacker privat innergård där sommarkvällar och familjesammankomster blir vardag.

Har 4 sovrum, men det finns ett som förtjänar ett särskilt kapitel, tornrummets rum. Imposant. Exklusivt. Med två privata terrasser och fri utsikt mot Granada. Ett unikt utrymme som kan vara drömkontor eller din privata, ljusstrålande tillflykt.

Bostaden har 3 badrum (varav ett är en WC i entréplan och ett annat badrum i en suite), utformade för daglig komfort.

Köket är fullt utrustat, klart att använda från första dagen, funktionellt och elegant.

Och när vi talar om rymd... då menar vi allvar.

Garaget är helt enkelt spektakulärt: motoriserade dörrar och plats för upp till 4 fordon. Något som praktiskt taget är omöjligt att hitta i området och som utgör en absolut skillnad.

Vad gäller komfort: uppvärmning med naturgas och förinstallation av luftkonditionering med ductsystem i hela bostaden.

Ett hus utformat för att bo i, njuta av och inte sakna någonting.

Sådana bostäder vid Vial de Churriana varar inte länge på marknaden.
Område med mycket hög efterfrågan i storstadsområdet.
Strategiskt läge bredvid tunnelbanan och Granada huvudstaden.

Det är inte bara ett parhus.
Det är en verklig möjlighet att bo i ett av de bästa områdena i Granadas omgivningar.

Om du väntar något särskilt… det har just dykt upp. Och det kommer inte att vänta länge.

Plats

Churriana de la Vega, Granada Platsen har inte angetts.

Funktioner

  • Radhus
  • Sovrum: 4
  • Badrum: 3
  • Byggtomt: 0 m2
  • Parkering/Garage
  • Luftkonditionering
  • Terrass/Balkong
  • Monterade garderober
  • Energicertifikat (konsumtion): D
  • Energicertifikat (utsläpp): D

Hur kan vi hjälpa dig?

Hittade du ett fel?

Berätta vad du har upptäckt för att korrigera det

Amorteringskalkylator

€
€
%

1 222 € per månad*

+ 28 650 € skatter (26 950 €) & utgifter (1 700 €)*

*Observera att resultaten endast är en guide och inte ett inteckning eller offert.

Kontakta annonsören

Hur kan vi hjälpa dig?

€

This field is required

Kontrollera felen ovan
+34 858 800 050

Ref. 9619578

Genom att skicka in detta formulär, bekräftar du att du samtycker till våra Användarvillkor och vår sekretesspolicy.

Dela

Relaterade fastigheter

3 sovrum Radhus till salu i Armilla med garage - 300 000 € (Ref: 1835938) 4 sovrum Radhus till salu i Armilla med garage - 349 500 € (Ref: 9341110) 4 sovrum Radhus till salu i Ogíjares med pool garage - 319 000 € (Ref: 9533847) 3 sovrum Radhus till salu i Granada stad med garage - 390 900 € (Ref: 8784188)

Annons

  1. Spanien
  2. Andalusien
  3. Granada
  4. Churriana de la Vega
  5. 4 sovrum Radhus till salu i Churriana de la Vega med garage - 385 000 € (Ref: 9619578)