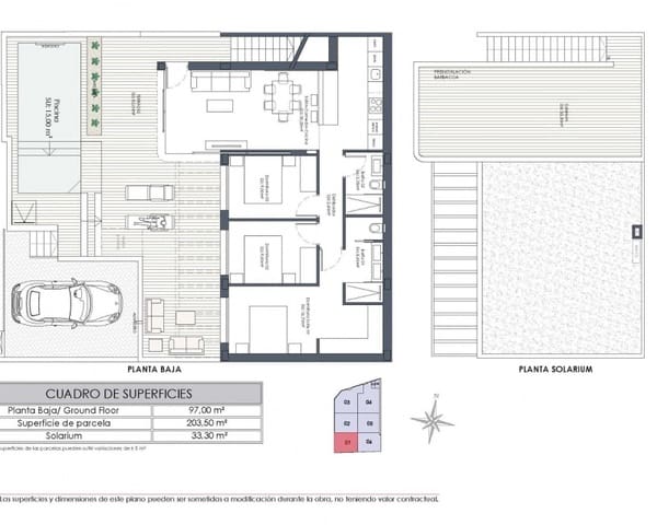
- 97 m2 Bygga
- 3 Sovrum
- 2 Badrum
- 186 m2 Byggtomt
Dessa radhus i ett plan ligger i Dolores i Vega Baja och kombinerar medelhavsinspirerad arkitektur med en modern och funktionell planlösning. Bostäderna ligger i ett etablerat bostadsområde, cirka... Läs mer