- 121 m2 Byggtomt
Sol med ruin och byggnad som behöver rivas i San Martín de los Herreros (Palencia). En säljs tomt med gammal ruin i San Martín de los Herreros, i hjärtat av Montaña Palentina. Fastigheten avser... Läs mer
Sol med ruin och byggnad som behöver rivas i San Martín de los Herreros (Palencia). En säljs tomt med gammal ruin i San Martín de los Herreros, i hjärtat av Montaña Palentina. Fastigheten avser... Läs mer
Bergvärd tomt omgärdad med brunn i Prádanos de Ojeda Säljs en urban tomt om 296 m² i Prádanos de Ojeda, helt omgärdad av mur, och med tillgång via två olika gator (norr- och söderläge),... Läs mer
Försäljning av två urbanäga i Sotobañado y Priorato. Säljs två tomter i centrum av Sotobañado y Priorato, med ytorna 305 m² och 975 m², idealiska för uppförande av en eller två... Läs mer
3 264 m² byggbar tomt i Herrer de Pisuerga, i ett villaområde. Såld byggbar tomt på 264 m² i Herrera de Pisuerga, belägen i ett villaområde med befintliga bostäder och utmärkt tillgång.... Läs mer
Jordbruksmark på 2 456 m² i Renedo de Zalima med möjlighet till urbanisering. Det säljs jordbruksmark på 2 456 m² i centrala Renedo de Zalima, bredvid ett område med villor, med möjlighet... Läs mer
Försäljning av jordbruksegendomar i Pomar de Valdivia Två lantbruksegendomar till salu i Pomar de Valdivia, idealiska för odling eller jordbruk. Fastighet 1: Lantlig tomt på 3 975 m², med... Läs mer
Tillgänglig en tomt till salu med en yta på 436 m2, perfekt för byggandet av två parhus eller radhus. Dessutom har den ett godkänt projekt för byggandet av 4 bostäder. Den ligger i Porquera de... Läs mer
Tomt tomtom urban och lantlig i Oteros de Boedo, nära Herrera de Pisuerga. Säljes en tomt i centrum av byn Oteros de Boedo, mycket nära gränsen till Herrera de Pisuerga, med alla tjänster på... Läs mer
Unik möjlighet! Byggbar tomt i Pza. Calvo Sotelo i Herrera de Pisuerga, provinsen Palencia. Denna mark är idealisk för utvecklare och investerare som söker att utveckla bostads-, kommersiella... Läs mer
Urban tomt på 433 m² i Canduela, annexerad till fastigheten till försäljning. En urban tomt utan byggnader på 433 m² i Canduela-kärnan, idealisk för nybyggnation eller som utbyggnad av... Läs mer
Urban tomt på 1 965 m² i Porquera de los Infantes, Pomar de Valdivia. Det säljs en urban tomt på 1 965 m² belägen i centrum av Porquera de los Infantes, i kommunen Pomar de Valdivia, norr om... Läs mer
Urban tomt 552 m² i sydläge i Porquera de Santullán. Nu säljs en urban tomt på 552 m² i ett privilegierat område i Porquera de Santullán, idealiskt för att bygga ett radhus eller ett... Läs mer
Försäljning av gårdar i området kring Cervera de Pisuerga. En intressant urval av gårdar erbjuds på olika platser i norra Palencia, ett område av stort landskaps- och jordbruksvärde,... Läs mer
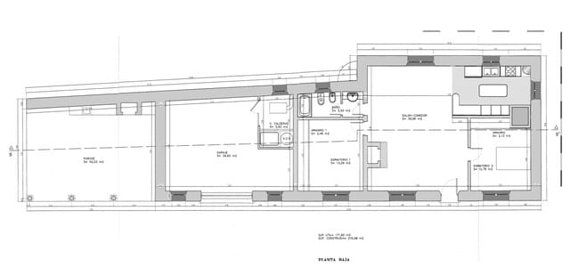
Försäljning av tomt under konstruktion i Estalaya (Palencia) 216 m² med utsikt över Montaña Palentina. Unik möjlighet att bygga ditt drömhem i en oöverträffad naturlig miljö. Tomt till salu... Läs mer
Urban tomt i industriområdet i Cervera de Pisuerga Säljning av urban tomt utan byggnader i Cervera de Pisuerga, belägen i området för industriområdet, mitt i Palentina-bergen. Tomten har... Läs mer
Till salu: en obebyggd tomt på 470 m² vid Barruelo-avenyn, en av Aguilar de Campoo:s zoner med utvecklingspotential, idealisk för bostadsutveckling eller privatprojekt. För närvarande finns det... Läs mer