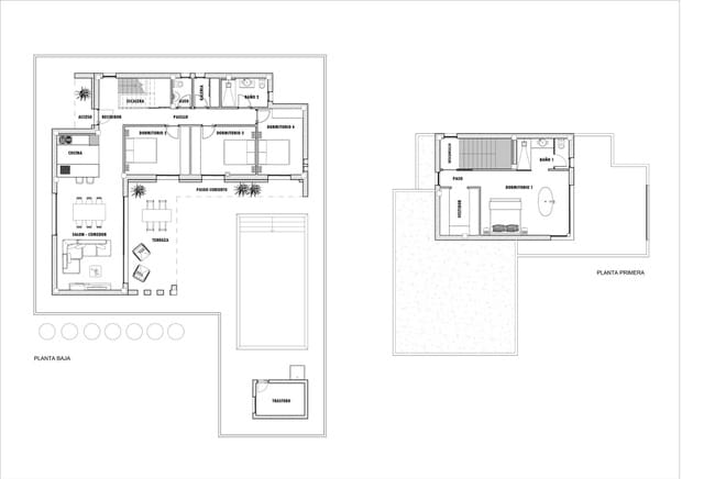
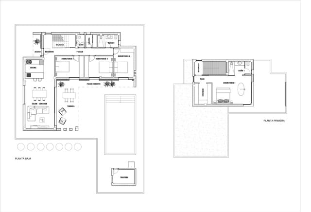
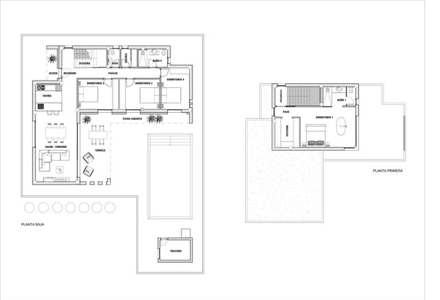
- 223 m2 Woonoppervlakte
- 4 Slaapkamers
- 3 Badkamers
- 13172 m2 Plot
Villa met 4 slaapkamers en privézwembad te koop in Aspe. Deze nieuwbouwwoning is ontworpen op twee verdiepingen en bestaat uit 4 slaapkamers (hoofdslaapkamer met kleedkamer), 3 badkamers (waarvan... Lees verder