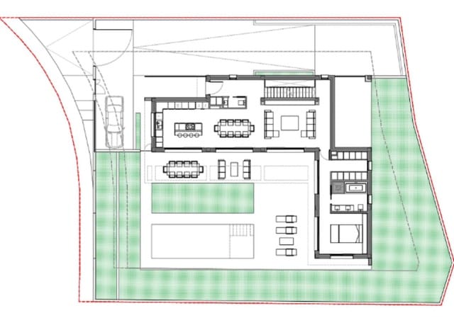
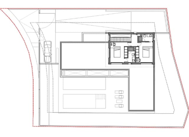
- 756 m2 Woonoppervlakte
- 1441 m2 Plot
Dit perceel is te koop met een project voor vrijstaande villa's, inclusief bouwvergunning. Het is ook beschikbaar als instapklare villa. Dit is een fantastische kans om een gloednieuwe luxe villa... Lees verder
Dit perceel is te koop met een project voor vrijstaande villa's, inclusief bouwvergunning. Het is ook beschikbaar als instapklare villa. Dit is een fantastische kans om een gloednieuwe luxe villa... Lees verder
Grond met natuur en zeezicht in Benalmadena Het grond ligt in Benalmadena, dat deel uitmaakt van de prachtige Costa del Sol. Costa del Sol is een beroemde badplaats in Spanje die bekend staat om zijn... Lees verder
Dit prachtige bouwperceel van 1.441 vierkante meter, genesteld in een serene en verhoogde omgeving, biedt een zeldzame en verleidelijke kans om een meesterwerk van moderne architectuur te creëren.... Lees verder
Bank nam stedelijk land in beslag dat bestemd was voor de bouw van maximaal 22 eengezinswoningen of een gebouw met twee verdiepingen in het centrum van Benalmadena Pueblo. Dit perceel heeft een... Lees verder
Midden in het hart van Arroyode de Bien, Benalmdena, een geweldig bouwkavel van 1448 vierkante meter voor residentieel gebruik. Er zou een vrijstaande villa of twee geschakelde woningen met twee... Lees verder
Uitmuntendheid: 780 m2 bouwgrond met uitzicht op zee, gelegen op minder dan 200 meter van de kust. Je kunt direct beginnen met de bouw van deze moderne villa, aangezien het project is goedgekeurd en... Lees verder
Perfecte grond van 1403 meter met diverse bouwmogelijkheden, variërend van appartementencomplexen met parkeergelegenheid, winkels, tot de mogelijkheid om je eigen villa met zwembad, tuin en moestuin... Lees verder
Kans voor investeerders! Uitstekend bouwperceel in een van de beste gebieden van Arroyo de la Miel, Benalmádena. Het heeft een oppervlakte van 445m2 Zeer drukke zone, op enkele meters van scholen,... Lees verder
Prachtige percelen in een nieuwe en mooie urbanisatie van chalets, Urb San Fernando (Zona Xanít) voorzien van groene zones, sportvelden en een speeltuin, met prachtige uitzichten en met alle... Lees verder
Prachtige kavel van 864 m2, bijna vlak en met vrij uitzicht. Bij de prijs inbegrepen topografisch onderzoek, geotechnisch onderzoek en basisproject voor een moderne woning met 2 verdiepingen + deels... Lees verder
Prachtige investeringskans in het hart van Benalmádena Pueblo, een van de meest exclusieve en gevraagde zones aan de Costa del Sol. Deze bouwkavel van 7.133 m² biedt een bebouwingsoppervlak van 2... Lees verder
Ontdek een ongeëvenaardeportuniteit met dit uitzonderlijke stedelijke perceel gelegen in de gewilde zone Torremuelle, Benalmádena. Met een ruime kaveloppervlakte van 730 m2 en slechts 300 meter van... Lees verder
Unieke kans! Perceel in La Perla, Benalmádena Costa, met goedgekeurd project en vergunning Gelegen in de exclusieve en rustige woonwijk La Perla, Benalmádena Costa, is dit perceel van 1.000 m2 de... Lees verder
Unieke kans: bouwkavel met verloofd en goedgekeurd project om het huis van je dromen te bouwen. Perceel van 294 m2 in de exclusieve woonwijk Urb. La Hacienda, Benalmádena, Málaga, dicht bij Cl. la... Lees verder
Perceel met uitzicht op zee, zonder buren en vergunning verleend. Bouw het huis van uw dromen aan zee. Stedelijk perceel met uitzicht op de Middellandse Zee, in La Capellanía, Benalmádena. Project... Lees verder
Stedelijk perceel met uitzicht op zee in Arroyo de la Miel, district Santangelo. Bouw de villa van je dromen op dit fabuleuze perceel van 875m2. Een indrukwekkend uitzicht op zee op elk niveau, een... Lees verder