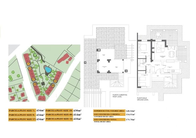
- 178 m2 Woonoppervlakte
- 3 Slaapkamers
- 2 Badkamers
- 861 m2 Plot
Villa in Fuente Alamo, Murcia Residentie van herenhuizen, vrijstaande en halfvrijstaande villa's in Fuente Álamo, Murcia. U kunt kiezen uit zeven verschillende modellen huizen, ontworpen naar... Lees verder