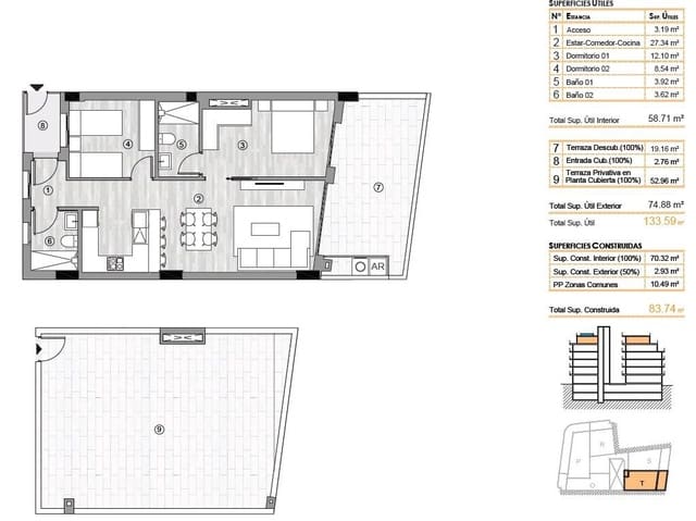
- 129 m2 Woonoppervlakte
- 3 Slaapkamers
- 2 Badkamers
Nieuwbouw residentieel complex van 1, 2 en 3 slaapkamer appartementen met grote terrassen in Calpe. Twee torens van 18 verdiepingen met mooie appartementen met uitzicht op de zee en het zoutmeer van... Lees verder