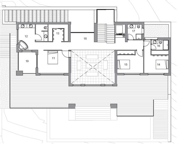
- 164 m2 Woonoppervlakte
- 3 Slaapkamers
- 3 Badkamers
- 1000 m2 Plot
Nieuw gebouwd project voor een moderne vrijstaande 3 slaapkamer villa op twee niveaus in de felbegeerde Tosalet gebied. Deze indrukwekkende villa bestaat uit: woonkamer met toegang tot het terras met... Lees verder