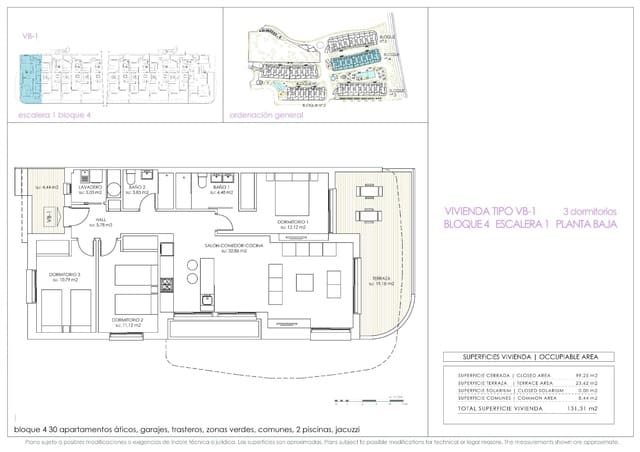
- 80 m2 Woonoppervlakte
- 3 Slaapkamers
- 2 Badkamers
- 30 m2 Plot
Playa Flamenca 3-slaapkamer 2-badkamer geschakelde villa te koop met solarium, beveiligde, afgesloten parkeergelegenheid in een gemeenschap met zwembad, dicht bij voorzieningen. Deze geschakelde... Lees verder