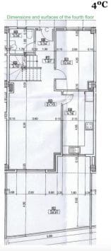
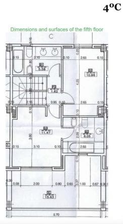
- 67 m2 Woonoppervlakte
- 1 Slaapkamer
- 1 Badkamer
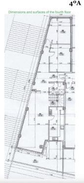
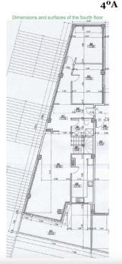
Gelegen in de charmante gemeente Relleu, biedt dit wooncomplex een verscheidenheid aan woonopties die aan verschillende behoeften voldoen. Met in totaal 40 eenheden kunnen toekomstige bewoners kiezen... Lees verder