- 281 m2 Woonoppervlakte
- 18936 m2 Plot
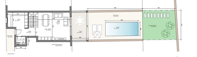
Perceel met Project en Bouwvergunning in de Selva, tegenover de Sierra de Tramuntana Dit uitzonderlijke rustieke perceel van 18.000 m2 in Selva biedt een unieke kans om een luxe villa te bouwen met... Lees verder
Perceel met Project en Bouwvergunning in de Selva, tegenover de Sierra de Tramuntana Dit uitzonderlijke rustieke perceel van 18.000 m2 in Selva biedt een unieke kans om een luxe villa te bouwen met... Lees verder
Gelegen in een rustige landelijke omgeving, is dit ruime landelijke bouwkavel te koop in Selva ongeveer 14.957 m² en wordt geleverd met een vergunning om een ruime villa van 468 m² te bouwen. Het... Lees verder
Ontdek een uitzonderlijke kans: een perceel van 21.000 m² met een lichte helling, gelegen aan de rand van het rustige en weinig bekende dorpje Moscari. Gelegen aan de rand van het dorp, aan de voet... Lees verder
Deze idyllische landelijke kavel wordt te koop aangeboden nabij het dorp Selva. Met een oppervlakte van ongeveer 21.000 m² omvat dit agrarische terrein twee putten, volledig omheind, heeft goed... Lees verder
In het hart van het binnenland van Mallorca presenteert zich een niet alledaagse kans voor wie een residentieel project met potentieel en flexibiliteit wil ontwikkelen. Het gaat om een set van vier... Lees verder
We presenteren je een uniek project op een landelijk perceel in de gemeente Selva op Mallorca. Met een perceel van ca. 14.500 m² biedt dit object de mogelijkheid om je ideale huis te bouwen, met een... Lees verder
Er wordt een prachtig landelijk perceel te koop aangeboden in de omgeving van Son Fuster, in Selva, met een oppervlakte van ca. 15.637 m2 volgens het kadaster, gelegen in een bevoorrechte natuurlijke... Lees verder
Te koop: bouwkaveld van ongeveer 16.000 m2, gelegen in een privilegieerde natuurlijke omgeving in de omgeving van Moscari, ideaal voor wie rust, privacy en direct contact met de natuur waardeert. Het... Lees verder
Perk grondstuk bestemd voor woningbouw te koop in de gemeente Selva, gelegen tussen Moscari en Campanet, dat wordt aangeboden met verleende bouwvergunning, wat het mogelijk maakt onmiddellijk met de... Lees verder
Te koop: ruim bouwrijp terrein met een basisproject van ongeveer 16.000 m2, gelegen in een gebied met privileged natuurlijke omgeving in het gebied Selva. De percelen beschikken over een reeds... Lees verder
Bouwperceel van 170m2 met goedgekeurd project en gemeentelijke vergunning om morgen al te beginnen met bouwen. De goedgekeurde vergunning staat de bouw toe van een woning van 165m2, verdeeld over... Lees verder