- 495 m2 Bygga
- 28062 m2 Byggtomt
Möjlighet att bo i det pittoreska Pla Mallorquín! En tomt på 28 062 m2 med bygglov för ett hus med 4 sovrum och pool godkänt av Costitx kommun, 5 minuter från bykärnan. Ett nyckelfärdigt... Läs mer
Möjlighet att bo i det pittoreska Pla Mallorquín! En tomt på 28 062 m2 med bygglov för ett hus med 4 sovrum och pool godkänt av Costitx kommun, 5 minuter från bykärnan. Ett nyckelfärdigt... Läs mer
Tomt och projekt till salu i Pla de Mallorca Godkänt Finca-projekt till salu i Costitx Belägen på den vackra mallorkinska landsbygden erbjuder denna imponerande tomt på 19 696 m² en unik... Läs mer
Gammalt stenhus att återställa till salu i Costix, som fortfarande är original och delvis sparar autentiska stenelement och som kan återställas. Det har det grundläggande restaureringsprojektet... Läs mer
Tomt till salu i Costitx, med utsikt över Sierra de Tramuntana. En fantastisk lantlig fastighet belägen i ett mycket lugnt område väster om den charmiga byn Costitx, 30 minuters bilresa från... Läs mer
Till salu en utmärkt tomt på 28.000 m², belägen på toppen av en vacker kulle i Costix, med imponerande utsikt över det mallorkinska landskapet. Denna exklusiva tomt har ett godkänt projekt och... Läs mer
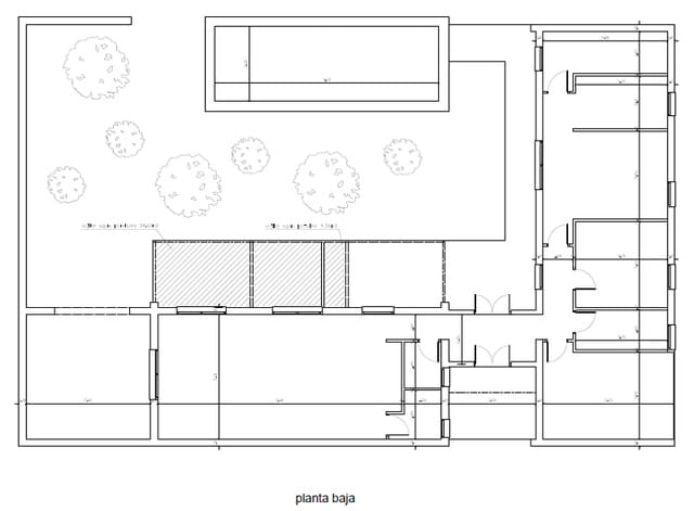
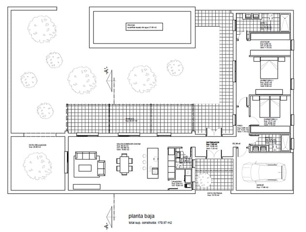
Tomt med bygglov för bostad med pool Projekt i en våning: Byggd yta 170 m2 | 2 dubbelrum | 2 badrum en suite | toalett | vardagsrum med matplats | hall | tvättstuga | pool på 27 m2 | terrass på... Läs mer
Fantastisk möjlighet till tomt med byggprojekt i Costitx med bygglov klart för att börja. Upptäck detta otroliga projekt som ska byggas på en tomt på 29 000 kvadratmeter. Projektets design som... Läs mer
Denna generösa byggbara tomt ligger i Costitx, mellan Inca och Sineu, i centrala Mallorca. För närvarande finns det ett litet hus och egna vinrankor på fastigheten. Det nuvarande projektet... Läs mer
Denna magnifika tomt på cirka 27.000 m2, belägen nära Costitx, erbjuder den perfekta möjligheten att bygga ditt drömhem i en lugn miljö omgiven av natur. För närvarande finns en byggnad som... Läs mer
Denna tomt på cirka 15.000m2 ligger mycket nära byn Costitx. Den har en vegetation av ekar och mandelträd. Tillgången är från den högsta delen av tomten där det finns en vacker utsikt, i den... Läs mer
Det handlar om en rymlig lantlig tomt på 30.143 kvadratmeter belägen i kommunen Costitx. För närvarande består den av ett rustikt hus på cirka 296 kvadratmeter fördelat på 4 sovrum, 4 badrum,... Läs mer
Rustik tomt med ansökt bygglov i Costitx (Area tomt 21.240 m2, Byggnadsarea 263 m2) I kommunen Costitx ligger denna rustika tomt med sina 21.240 m2. Tomten har en vacker utsikt över byn och har en... Läs mer