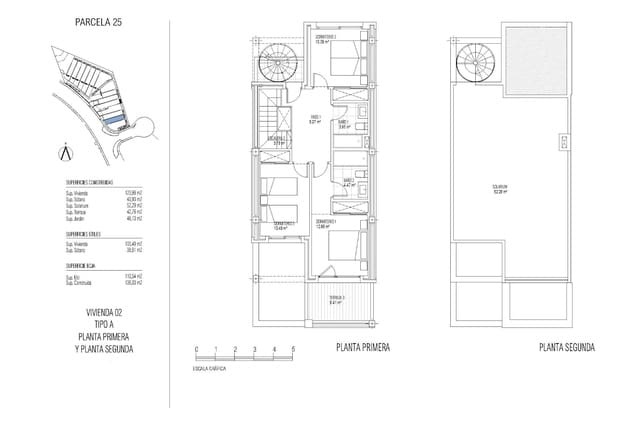
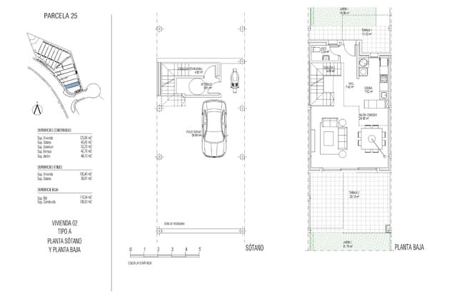
- 125 m2 Woonoppervlakte
- 3 Slaapkamers
- 2 Badkamers
Wij presenteren een nieuwe en exclusieve collectie off-plan herenhuizen in Manilva, die luxe wonen naar een hoger niveau tillen. Gelegen op een schilderachtige heuvel, bieden deze ruime woningen... Lees verder