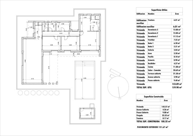
- 390 m2 Woonoppervlakte
- 9 Slaapkamers
- 1 Badkamer
- 535 m2 Plot
Historisch gebouw uit de 19e eeuw in aan de hoofdstraat van Aspe. Gelegen aan de hoofdstraat van het dorp, vinden we dit pand vol geschiedenis, dat ons uitnodigt om een reis door de tijd te maken.... Lees verder